
Crozilla.com
SPATIUM real estate
+38 ···
Nr. anzeigenPreise & Kosten
Provision für Käufer
Bitte beachte, das Angebot kann bei Vertragsabschluss die Zahlung einer Provision beinhalten. Weitere Informationen erhältst Du vom Anbieter.
Die Wohnung
Wohnungslage
1. Geschoss
Wohnanlage
Details
Objektbeschreibung
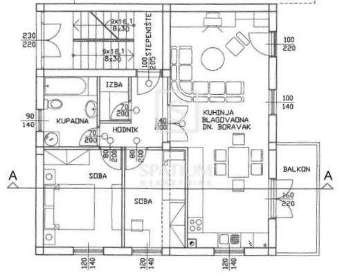
PERMANI, wir bieten eine Wohnung im Erdgeschoss eines Neubaus mit einer Fläche von 65 m2 an. Neben der Wohnung gibt es auch einen Geschäftsraum von 10 m2 mit Toilette, was diese Immobilie für Kunden, die von zu Hause aus arbeiten oder ein ruhiges Geschäft haben, sehr interessant macht. Die Wohnung besteht aus einer...
Weitere Informationen
Stichworte
Anzahl der Schlafzimmer: 2, Anzahl der Badezimmer: 1, 1 Etagen
Anbieter der Immobilie
Crozilla.com
Nova cesta 60, 10000 ZAGREB
Online-ID: 2ndej52
Referenznummer: 18986170_0
Finde Angebote wie dieses
Hier geht es zu unserem Impressum, den Allgemeinen Geschäftsbedingungen, den Hinweisen zum Datenschutz und nutzungsbasierter Online-Werbung.