
massa haus - Janina Ditzmann
Frau Janina Ditzmann
+49 ···
Nr. anzeigenPreise & Kosten
Provision für Käufer
Bitte beachte, das Angebot kann bei Vertragsabschluss die Zahlung einer Provision beinhalten. Weitere Informationen erhältst Du vom Anbieter.
Lage
Die Ortsgemeinde Frankeneck liegt idyllisch im Pfälzerwald, eingebettet in das landschaftlich reizvolle Elmsteiner Tal. Umgeben von ausgedehnten Wäldern und Naturflächen grenzt der Ort an die Nachbargemeinden Neidenfels, Deidesheim, Lambrecht, Esthal und Weidenthal. Verwaltungstechnisch gehört Frankeneck zur Verbandsgemeinde...
Das Haus
Energie & Heizung
Warum sehe ich diese Anzeige? – Du siehst diese Anzeige basierend auf Ihrer Navigation auf unserer Website und den Suchkriterien, die du verwendet hast.
Weitere Energiedaten
Haustyp
Fertighaus, KfW 55
Heizungsart
Fußbodenheizung, Luft-/Wasser-Wärmepumpe
Details
Objektbeschreibung
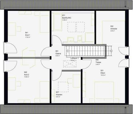
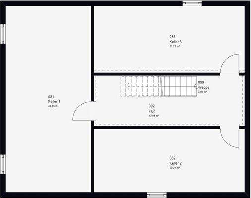
Großzügiges Einfamilienhaus mit klarer Familienstruktur - Lifestyle 18.07 S mit Keller
Das Lifestyle 18.07 S von massa haus steht für viel Platz, klare Abläufe und zeitlose Architektur mit klassischem Satteldach. Dieses Haus ist ideal für Familien, die großzügig wohnen und ihren Alltag strukturiert organisieren...
Ausstattung
* modernes und energieeffizientes KFW 55
(optional KFW 40 möglich) Einfamilienhaus
* teilweise freistehender Rohkeller mit 2,70 Rohbauhöhe, Abdichtung gegen aufsteigende Bodenfeuchte und Sockeldämmung
* Fassade mit mineralischem Struktur- Außenputz
* individuell wählbare moderne Haustür
* Rollläden für alle...
Weitere Informationen
Sonstiges
Das dargestellte Haus versteht sich als realisierbares Projektbeispiel. Haustyp, Dachform und Ausgestaltung lassen sich flexibel an Ihre persönlichen Wünsche anpassen.
Errichtung und Fertigstellung nach Absprache.
Stichworte
Nutzfläche: 186,00 m², Anzahl der Schlafzimmer: 5, Anzahl der Badezimmer...
Anbieter der Immobilie
massa haus - Janina Ditzmann
In den Ransenäckern 8, 67310 Hettenleidelheim
Online-ID: 2ndfa57
Referenznummer: MH-FRE-LS18.07S
Finde Angebote wie dieses
Hier geht es zu unserem Impressum, den Allgemeinen Geschäftsbedingungen, den Hinweisen zum Datenschutz und nutzungsbasierter Online-Werbung.