
Domig Immobilien OG
Herr Andreas H. Kathan
004 ···
Nr. anzeigenPreise & Kosten
Provision für Käufer
3,5% Grunderwerbssteuer
1,1% Grundbucheintragung
1,2% Vertragskosten
3,6% Maklerhonorar inkl. MwSt.
Lage
ruhig
sonnig
gute Infrastruktur
in einer Sackgasse gelegen
Die Wohnung
Kategorie
Penthouse
Wohnungslage
2. Geschoss
Bezug
nach Vereinbarung
Wohnanlage
Energie & Heizung
Warum sehe ich diese Anzeige? – Du siehst diese Anzeige basierend auf Ihrer Navigation auf unserer Website und den Suchkriterien, die du verwendet hast.
Heizwärmebedarf (HWB)
38,00 kWh/(m²·a)
Gesamtenergieeffizienz (fGEE)
0,48
Weitere Energiedaten
Energieträger
Gas
Heizungsart
Fußbodenheizung, offener Kamin
Details
Objektbeschreibung
Die Wohnung besticht nicht nur mit dem modernen Holzkamin für ein wärmendes Gefühl. Auch die lichtdurchfluteten Fensterfronten mit unverbaubarer Aus- und Weitsicht auf die Schweizer Berge und Grünlandschaften sorgen für eine traumhafte Wohnatmosphäre.
Die in einer Sackgasse gelegene Wohnung, nahe dem LKH und der...
Ausstattung
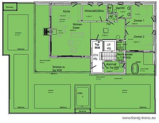
Die ca. 129m² große Penthouse-Wohnung mit begrünter Fläche und einer ca. 280m² Terrasse liegt im zweiten Stock einer kleinen Wohnanlage mit nur 8 Wohneinheiten.
Preisinformation
auf Anfrage!
Weitere Informationen
Sonstiges
Küche, Bad, WC
Stichworte
Tiefgarage vorhanden, Stellplatz vorhanden, Anzahl der Schlafzimmer: 3, Anzahl der separaten WCs: 1, Anzahl Terrassen: 1, Balkon-Terrassen-Fläche: 280,76 m², Kellerfläche: 4,00 m², Bundesland: Vorarlberg, Wohnungsnr.: 8, Lage im Wohngebiet
Dokumente
Anbieter der Immobilie
Domig Immobilien OG
Moosmahdstrasse 42, 6850 Dornbirn
Online-ID: 2ndgu59
Referenznummer: 1668
Finde Angebote wie dieses
Günstige Immobilienfinanzierung einfach online berechnen
Persönliches Angebot berechnenWarum sehe ich diese Werbung? – Du siehst diese Werbung basierend auf Deiner Navigation auf unserer Website und der von Dir verwendeten Suchkriterien.
Diese Werbung wird bezahlt von durchblicker
Werbung melden
Hier geht es zu unserem Impressum, den Allgemeinen Geschäftsbedingungen, den Hinweisen zum Datenschutz und nutzungsbasierter Online-Werbung.