

Living Fertighaus GmbH Vertriebsbüro
Herr Oliver Zschörnig
+49 ···
Nr. anzeigenPreise & Kosten
Provision für Käufer
provisionsfrei
Lage
Das Grundstück liegt in Sommerfeld, einem gewachsenen, familienfreundlichen Wohngebiet im Osten Leipzigs. Ruhiges Wohnen in gepflegter Eigenheimsiedlung trifft hier auf hervorragende Infrastruktur: Schulen, Kindergärten, Einkaufsmöglichkeiten und medizinische Versorgung sind schnell erreichbar.
Die Anbindung an Leipzig...
Das Haus
Baujahr
2027
Energie & Heizung
Warum sehe ich diese Anzeige? – Du siehst diese Anzeige basierend auf Ihrer Navigation auf unserer Website und den Suchkriterien, die du verwendet hast.
Energieausweistyp
Bedarfsausweis
Gebäudetyp
Wohngebäude
Baujahr laut Energieausweis
2027
Wesentliche Energieträger
Strom
Effizienzklasse
A+
Endenergiebedarf
18,00 kWh/(m²·a)
Weitere Energiedaten
Haustyp
Fertighaus, KfW 40
Heizungsart
Luft-/Wasser-Wärmepumpe
Details
Objektbeschreibung
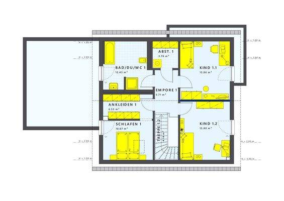
Das SOLUTION 183 ist ein innovatives Mehrgenerationenhaus mit großer und kleiner Wohneinheit, die sich vermieten oder selbst nutzen lässt - ideal zur Unterstützung des Baukredits. Erdgeschoss mit offener Wohnlandschaft, Dachgeschoss mit Schlafzimmern, Ankleide, Bad und Kinderzimmern. Die kleine Wohnung verfügt über einen...
Ausstattung
?? Living Haus - Mehr als ein Haus, dein Zuhause! ??
Bauen kann kompliziert sein - muss es aber nicht! Mit Living Haus bekommst du alles, was du brauchst, direkt mit dazu. Keine versteckten Kosten, kein Kleingedrucktes - einfach ein perfekt durchdachtes Zuhause. Von außen fix und fertig, von innen individuell - genau...
Weitere Informationen
Sonstiges
"?? Dein perfektes Grundstück wartet - aber nicht ewig! ??
Du träumst von den eigenen vier Wänden? Dann fehlt nur noch das passende Bauland! Mit Living Haus sicherst du dir das perfekte Grundstück für dein neues Zuhause. ??
?? Jetzt Termin vereinbaren & durchstarten: 0178-8884022
?? Wichtige...
Anbieter der Immobilie
Living Fertighaus GmbH Vertriebsbüro
Chopinstrasse 25, 04103 Leipzig

Online-ID: 2ndqa5b
Referenznummer: 30764-5608
Finde Angebote wie dieses
Hier geht es zu unserem Impressum, den Allgemeinen Geschäftsbedingungen, den Hinweisen zum Datenschutz und nutzungsbasierter Online-Werbung.