

DFI-Immobilien UG
Herr Jürgen Lehner
073 ···
Nr. anzeigenPreise & Kosten
Provision für Käufer
4,76 %
Lage
Die DHH befindet sich in einem ruhigen Stadtteil von Kempten, einer charmanten Stadt im Allgäu. Der Stadtteil zeichnet sich durch seine grünen Parks und Spielplätze aus und bietet eine entspannte Atmosphäre für Familien und Pendler gleichermaßen. Die Anbindung an das öffentliche Verkehrsnetz ist hervorragend und Geschäfte...
Das Haus
Kategorie
Doppelhaushälfte
Bezug
sofort
Derzeitige Nutzung
frei
Energie & Heizung
Warum sehe ich diese Anzeige? – Du siehst diese Anzeige basierend auf Ihrer Navigation auf unserer Website und den Suchkriterien, die du verwendet hast.
Energieausweistyp
Bedarfsausweis
Gebäudetyp
Wohngebäude
Baujahr laut Energieausweis
1937
Wesentliche Energieträger
Strom
Gültigkeit
17.08.2024 bis 16.08.2034
Effizienzklasse
E
Endenergiebedarf
163,70 kWh/(m²·a)
Weitere Energiedaten
Energieträger
Pellets
Heizungsart
Etagenheizung, offener Kamin
Details
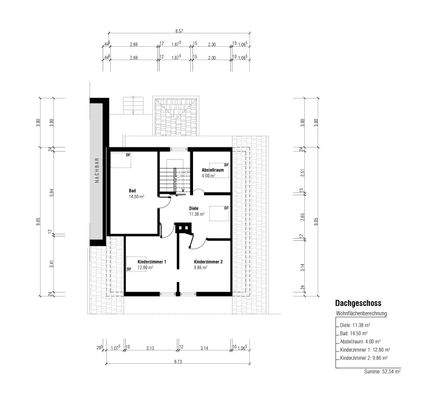
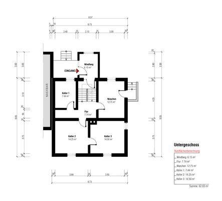
Objektbeschreibung
Die Räumlichkeiten der DHH sind großzügig geschnitten und bieten viel Platz zum Leben und Wohlfühlen.
Die 7 Zimmer bieten ausreichend Platz für die ganze Familie und die zwei Badezimmer sorgen für Komfort. Der Balkone bietet eine schöne Aussicht und lädt zum Verweilen ein.
Zusätzlich zu den umfangreichen...
Ausstattung
Die Immobilie verfügt über ein Badezimmer, das mit einer Badewanne, einem Pissoir, einem Fenster und einer Dusche ausgestattet ist. Des Weiteren ist eine hochwertige Einbauküche vorhanden sowie ein gemütlicher Kamin. Die Bodenbeläge in der Immobilie bestehen aus Fliesen und Parkett, was für ein ansprechendes und gepflegtes...
Weitere Informationen
Ihre Anfrage wird in der Regel innerhalb von 48 Stunden bearbeitet. Bitte prüfen Sie auch gegebenenfalls Ihren Spamordner im E-Mail Postfach. Sollten wir Ihr Interesse geweckt haben und Sie haben Fragen oder möchten einen Besichtigungstermin vereinbaren, erreichen Sie uns unter den folgenden Kontaktdaten.
Wir freuen...
Anbieter der Immobilie
DFI-Immobilien UG
Beckenkreuz 9/3, 89471 Laupheim

Online-ID: 2nep955
Referenznummer: 8421
Finde Angebote wie dieses
Hier geht es zu unserem Impressum, den Allgemeinen Geschäftsbedingungen, den Hinweisen zum Datenschutz und nutzungsbasierter Online-Werbung.