
Immobiliefürmich GmbH
Herr Erik Margraf
+49 ···
Nr. anzeigenPreise & Kosten
Kaution
1710
Abschreibung/Anlage
als Kapitalanlage geeignet
Warum sehe ich diese Anzeige? – Du siehst diese Anzeige basierend auf Ihrer Navigation auf unserer Website und den Suchkriterien, die du verwendet hast.
Lage
Naturnahe Umgebung:
Eingebettet in eine grüne Oase mit weitläufigen Wiesen und Wäldern, bietet die Lage ein hohes Maß an Erholung und Lebensqualität. Ob ausgedehnte Spaziergänge, Joggingrunden oder einfach nur die frische Luft genießen - Naturfreunde kommen hier voll auf ihre Kosten.
Gute Verkehrsanbindung:
Die...
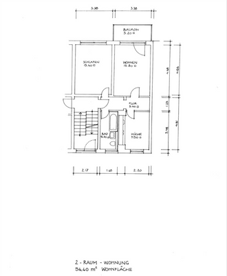
Die Wohnung
Kategorie
Apartment
Wohnungslage
1. Geschoss
Bezug
01.03.2026
Derzeitige Nutzung
frei
Wohnanlage
Energie & Heizung
Warum sehe ich diese Anzeige? – Du siehst diese Anzeige basierend auf Ihrer Navigation auf unserer Website und den Suchkriterien, die du verwendet hast.
Energieausweistyp
Verbrauchsausweis
Gebäudetyp
Wohngebäude
Baujahr laut Energieausweis
1967
Wesentliche Energieträger
Gas
Gültigkeit
03.04.2018 bis 03.04.2028
Effizienzklasse
B
Endenergieverbrauch
61,00 kWh/(m²·a)
Weitere Energiedaten
Energieträger
Gas
Heizungsart
Zentralheizung
Details
Objektbeschreibung
Die Wohnung wird vollständig und hochwertig möbliert vermietet und ist sofort bezugsfertig. Die Ausstattung umfasst unter anderem eine moderne Einbauküche mit allen notwendigen Elektrogeräten, einen vollständig eingerichteten Wohn- und Essbereich, ein komfortables Schlafzimmer sowie funktionale Stauraumlösungen.
Dank...
Ausstattung
? Großzügiger Wohnbereich mit Couch, Essbereich und viel Tageslicht
? Schlafzimmer mit Blick ins Grüne
? Badezimmer mit Badewanne für entspannte Stunden
? Balkon - perfekt für Ihre Morgenkaffees oder entspannte Abende
? Kellerabteil für zusätzlichen Stauraum
? Waschmaschine zum Waschen von Kleidung
...
Preisinformation
1 Stellplatz
1 Garagenstellplatz
Weitere Informationen
Stichworte
TV: Kabelanschluss, Sat-Anschluss
Sonstiges/Wohnen: Dachboden
Anbieter der Immobilie
Immobiliefürmich GmbH
Monheimer Str. 26, 40789 Monheim am Rhein
Online-ID: 2nern5c
Referenznummer: 1599 (1/1599)
Finde Angebote wie dieses
Hier geht es zu unserem Impressum, den Allgemeinen Geschäftsbedingungen, den Hinweisen zum Datenschutz und nutzungsbasierter Online-Werbung.