

ISH Immobilien OHG
Herr Philip Laing
041 ···
Nr. anzeigenPreise & Kosten
zzgl. Nebenkosten
Kaution
1.100,00
Provision für Mieter
provisionsfrei
Warum sehe ich diese Anzeige? – Du siehst diese Anzeige basierend auf Ihrer Navigation auf unserer Website und den Suchkriterien, die du verwendet hast.
Lage
Die Hansestadt Stade liegt mit ca. 50.000 Einwohnern an der Elbe und Schwinge. Stade hat einen der größten Seehäfen in Niedersachsen und eine über 1000-jährige Geschichte, die sich in der historischen Altstadt mit wunderschönen Fachwerkhäusern widerspiegelt. Stade ist ein wirtschaftliches und kulturelles Behörden- und...
Büro-/Praxisfläche
Kategorie
Bürofläche
Baujahr
1986
Bezug
nach Vereinbarung
Energie & Heizung
Warum sehe ich diese Anzeige? – Du siehst diese Anzeige basierend auf Ihrer Navigation auf unserer Website und den Suchkriterien, die du verwendet hast.
Wärme
Energieausweistyp
Verbrauchsausweis
Gebäudetyp
Nicht-Wohngebäude
Baujahr laut Energieausweis
1986
Wesentliche Energieträger
Gas
Gültigkeit
09.03.2016 bis 08.03.2026
Endenergieverbrauch (Wärme)
242,00 kWh/(m²·a)
Weitere Energiedaten
Energieträger
Gas
Details
Objektbeschreibung
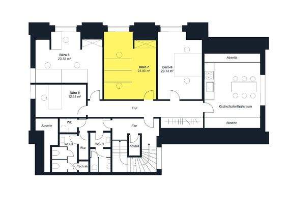
Der Büroraum befindet sich im 1.Obergeschoss eines Büro-/Geschäftshauses in guter und belebter Lage von Stade-Kopenkamp in der Thuner Straße. Das Erdgeschoss des Gebäudes wird von ISH Immobilien OHG genutzt. Im Obergeschoss befinden sich insgesamt vier Büroräume, ein gemeinschaftlich genutzter Aufenthaltsraum mit Küchenzeile...
Ausstattung
+ Büroraum, ca. 23m²
+ Klimaanlage
+ Design-Bodenbelag
+ Netzwerksteckdosen vorhanden
+ separate Klingel mit Gegensprechanlage und Türöffner
+ Gemeinschaftsküche zur Mitnutzung
+ Pauschalmiete (inkl. Strom-, Wasser- und Heizkosten), zzgl. 19% Mehrwertsteuer
+ separater Internetanschluss erforderlich
+...
Weitere Informationen
Sonstiges
Hinweis: Wir weisen höflich darauf hin, dass die hier gemachten Angaben ausschließlich auf den uns vom Eigentümer übermittelten Unterlagen und Daten basieren. Für die Richtigkeit und Vollständigkeit können wir keine Haftung übernehmen. Das Angebot ist freibleibend. Forderungen und Irrtümer...
Anbieter der Immobilie

Online-ID: 2nevn5d
Referenznummer: 5003
Finde Angebote wie dieses
Hier geht es zu unserem Impressum, den Allgemeinen Geschäftsbedingungen, den Hinweisen zum Datenschutz und nutzungsbasierter Online-Werbung.