Bien-Zenker GmbH

Frau Manuela Forstner

Grundstück für Ihre Doppelhaushälfte sofort verfügbar, jetzt Eigenheim realisieren!

€ 1.120.000
Kaufpreis
230 m²
Wohnfläche ca.
7
Zimmer
350 m²
Grundstücksfl. ca.

Der Anbieter dieses Objekts hat gegenüber der AVIV Germany GmbH als Betreiber dieses Online-Marktplatzes erklärt, nicht als Unternehmer im Sinne des § 1 KSchG zu handeln. Die im Verbraucherschutzrecht der Union verankerten Verbraucherrechte (insbesondere Informationspflichten und Rücktritts- bzw. Widerrufsrechte) finden auf den Vertrag zwischen dem Anbieter des Objekts und Ihnen (dem Interessenten) keine Anwendung.

Provisionsfrei
Gewerblicher Anbieter

Der Anbieter dieses Objekts hat gegenüber der AVIV Germany GmbH als Betreiber dieses Online-Marktplatzes erklärt, als Unternehmer im Sinne des § 1 KSchG zu handeln.

AdresseStraße nicht freigegeben
86150 Augsburg 
(Innenstadt)
Auf Karte ansehen

Preise & Kosten

Kaufpreis € 1.120.000

Provision für Käufer

provisionsfrei

Lage

1 Grundstück in Hochzoll verfügbar.
Sofortiger Baubeginn möglich.

2 Geschosse + Dachgeschoss mit Pultdach und Dachterrasse möglich.

Zzgl. ortsüblichen Baunebenkosten.

Das Haus

Kategorie

Doppelhaushälfte

Baujahr

2026

Bezug

sofort

  • Zustand: projektiert
  • nicht unterkellert
  • Terrasse, Garten
  • Gäste-WC

Details

Objektbeschreibung

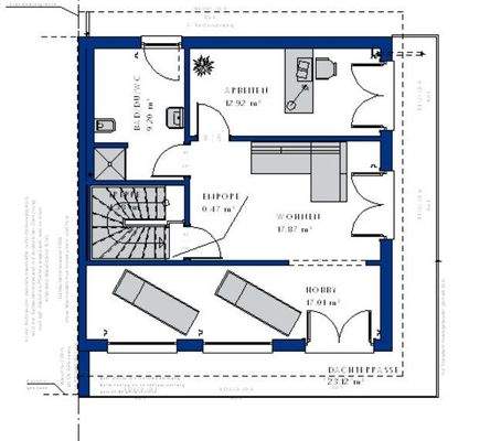
Endlich zu Hause! Dieses Gefühl gibt Ihnen unser Doppelhaus CELEBRATION 139 XXL mit den komfortablen Außenmaßen von rund 10 x 10 Metern. Im Erdgeschoss lädt es zu offenem Wohnen auf über 40 Quadratmetern ein und bietet Ihrer drei- bis vierköpfigen Familie oben die nötige Privatsphäre. Und Sie haben die Möglichkeit, diesen...

Mehr anzeigen

Ausstattung

Gemeinsam schaffen wir die Grundlagen für Ihren Hausbau.

Die Grundrisse können individuell geplant werden.
Es stehen die Ausbaustufen ´Schlüsselfertig´, ´Zur Ausstattung fertig´ und ´Ausbauhaus´ zur Verfügung.

* Best- und Festpreisgarantie
* Crefo zertifiziert
* höchste Kundenzufriedenheit
* frei...

Mehr anzeigen

Weitere Informationen

Sonstiges
Es werden nur vollständige Kontaktanfragen beantwortet.
Gerne vereinbaren wir einen persönlichen Beratungstermin.
Grundstück nur in Verbindung eines Bien-Zenker Hauses erwerbbar.

Energiepass
Energieausweis wird bei Besichtigung vorgelegt.

Stichworte
Anzahl der Schlafzimmer: 2, Anzahl der...

Mehr anzeigen

Anbieter der Immobilie

Partner

Bien-Zenker GmbH

Kimmerle-Ring 2 (Haus 12), 89312 Günzburg

user

Frau Manuela Forstner

Dein Ansprechpartner

Anbieter-Website Anbieter-Profil Anbieter-Impressum

Online-ID: 2nevv52

Referenznummer: 12624-398

Finde Angebote wie dieses

imageimageimage

Hier geht es zu unserem Impressum, den Allgemeinen Geschäftsbedingungen, den Hinweisen zum Datenschutz und nutzungsbasierter Online-Werbung.