

AuerBröckel Finanzkultur GmbH
Frau Romy Auer
073 ···
Nr. anzeigenPreise & Kosten
Kaution
1800
Warum sehe ich diese Anzeige? – Du siehst diese Anzeige basierend auf Ihrer Navigation auf unserer Website und den Suchkriterien, die du verwendet hast.
Lage
Römerstein bietet eine ruhige und naturnahe Wohnlage im Landkreis Reutlingen. Die Gemeinde ist gut an das regionale Verkehrsnetz angebunden, was Pendlerfahrten erleichtert. Einkaufsmöglichkeiten für den täglichen Bedarf sowie Ärzte und Dienstleister sind in der näheren Umgebung vorhanden. Zahlreiche Freizeitmöglichkeiten in...
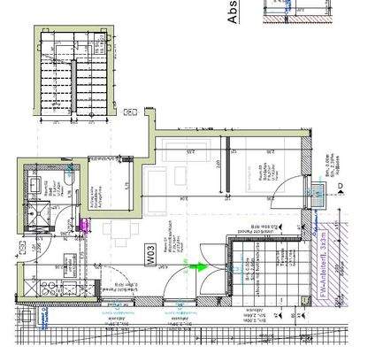
Die Wohnung
Wohnungslage
Erdgeschoss
Bezug
01.06.2026
Wohnanlage
Energie & Heizung
Warum sehe ich diese Anzeige? – Du siehst diese Anzeige basierend auf Ihrer Navigation auf unserer Website und den Suchkriterien, die du verwendet hast.
Weitere Energiedaten
Haustyp
KfW 55
Heizungsart
Luft-/Wasser-Wärmepumpe, Zentralheizung
Details
Objektbeschreibung
Diese moderne 2-Zimmer-Neubauwohnung im Erdgeschoss befindet sich in einem hochwertigen Mehrfamilienhaus in Römerstein und ist ab 01.06.2026 bezugsbereit. Auf 45,83 m² Wohnfläche bietet sie zeitgemäßen Wohnkomfort mit einer optimalen Raumaufteilung – ideal für Singles oder Paare.
Der helle Wohn- und Essbereich mit...
Ausstattung
Ausstattung & Highlights:
Wohnfläche: 45,83 m²
2 Zimmer
Neubau
Erdgeschoss
Terrasse
Wohnzimmer mit offener Küche
1 Schlafzimmer
Aufzug
Tiefgaragenstellplatz
Keller
Gemeinschaftlicher Waschraum
Weitere Informationen
Sonstiges
weitergegebenen Objektinformationen, Unterlagen etc. vom Eigentümer stammen. Daher übernehmen wir keine Haftung für die Richtigkeit oder Vollständigkeit der Angaben. Es obliegt somit unseren Kunden, die darin enthaltenen Objektinformationen und Angaben auf ihre Richtigkeit hin zu überprüfen.
Die angegebenen...
Anbieter der Immobilie

AuerBröckel Finanzkultur GmbH

Online-ID: 2nexq5c
Referenznummer: VM-PH-03
Finde Angebote wie dieses
Hier geht es zu unserem Impressum, den Allgemeinen Geschäftsbedingungen, den Hinweisen zum Datenschutz und nutzungsbasierter Online-Werbung.