
Grethe Schellmann Immobilienvermarktungs GmbH
Frau Laura Mütsch
004 ···
Nr. anzeigenPreise & Kosten
Provision für Käufer
Bitte beachte, das Angebot kann bei Vertragsabschluss die Zahlung einer Provision beinhalten. Weitere Informationen erhältst Du vom Anbieter.
Lage
Wertheim, die größte Stadt im Main-Tauber-Kreis, liegt malerisch am Zusammenfluss von Main und Tauber und ist Teil der wirtschaftsstarken Region Heilbronn-Franken. Als moderne große Kreisstadt verbindet Wertheim eine hohe Lebensqualität mit stabilen wirtschaftlichen Perspektiven und einer sehr gut ausgebauten Infrastruktur...
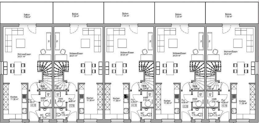
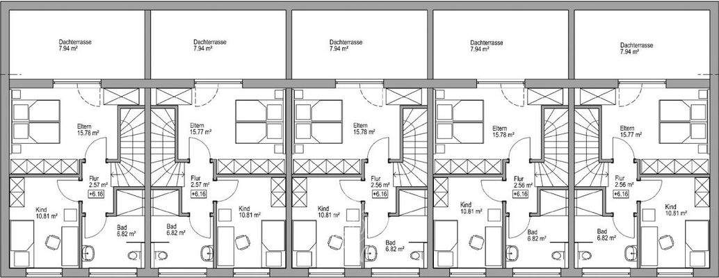
Die Wohnung
Kategorie
Maisonette
Wohnungslage
2. Geschoss
Wohnanlage
Energie & Heizung
Warum sehe ich diese Anzeige? – Du siehst diese Anzeige basierend auf Ihrer Navigation auf unserer Website und den Suchkriterien, die du verwendet hast.
Energieausweistyp
Bedarfsausweis
Gebäudetyp
Wohngebäude
Baujahr laut Energieausweis
2026
Wesentliche Energieträger
LUFTWP
Gültigkeit
bis 22.01.2036
Effizienzklasse
A+
Endenergiebedarf
37,20 kWh/(m²·a)
Weitere Energiedaten
Heizungsart
Luft-/Wasser-Wärmepumpe
Details
Objektbeschreibung
Im beliebten Wertheimer Stadtteil Reinhardshof entsteht mit "Reinhardshof Panorama" ein modernes Neubauensemble mit insgesamt 18 Wohnungen, das zeitgemäße Architektur, energieeffiziente Bauweise und hohen Wohnkomfort vereint. Diese moderne Maisonette-Wohnung mit ca. 106 m² Wohnfläche, verbindet großzügiges Wohnen über zwei...
Ausstattung
Energieeffiziente Bauweise & moderne Technik
. Neubau nach KfW-55-Standard
. Nachhaltige und zukunftssichere Haustechnik
. Hochwertige Massivbauweise
. 3-fach-Isolierverglasung für optimale Energieeffizienz
. Elektrische Rollläden
. Fußbodenheizung in allen Wohnräumen
. Innovative...
Preisinformation
2 Stellplätze, Miete je: 10.000,00 EUR
Weitere Informationen
Sonstiges
Fordern Sie weitere Unterlagen an oder informieren
Sie sich in einem persönlichen Beratungsgespräch über
dieses Neubauprojekt.
Stichworte
Anzahl der Schlafzimmer: 2, Anzahl der Badezimmer: 1, Anzahl der separaten WCs: 1, Anzahl Balkone: 1, Anzahl Terrassen: 1
Anbieter der Immobilie
Online-ID: 2neyd59
Referenznummer: 1553
Finde Angebote wie dieses
Hier geht es zu unserem Impressum, den Allgemeinen Geschäftsbedingungen, den Hinweisen zum Datenschutz und nutzungsbasierter Online-Werbung.