
A1 Immobilien GmbH
Herrn Phillip Wenderoth
+49 ···
Nr. anzeigenPreise & Kosten
Provision für Käufer
provisionsfrei
Abschreibung/Anlage
Denkmalschutz-Afa
Lage
Die Immobilie ist in der südlichen Innenstadt von Halle (Saale) gelegen. In unmittelbarer Umgebung befinden sich Einkaufsmöglichkeiten, Schulen, Kindertagesstätten, Ärzte und öffentliche Verkehrsmittel. Das historische Stadtzentrum mit Marktplatz und vielen weiteren Geschäften, Ladenstraßen und gastronomischen Einrichtungen...
Die Wohnung
Bezug
nach Absprache
Derzeitige Nutzung
vermietet
Wohnanlage
Energie & Heizung
Warum sehe ich diese Anzeige? – Du siehst diese Anzeige basierend auf Ihrer Navigation auf unserer Website und den Suchkriterien, die du verwendet hast.
Energieausweistyp
Verbrauchsausweis
Gebäudetyp
Wohngebäude
Baujahr laut Energieausweis
1900
Wesentliche Energieträger
Gas
Gültigkeit
26.10.2018 bis 25.10.2028
Effizienzklasse
D
Endenergieverbrauch
118,40 kWh/(m²·a) - Warmwasser enthalten
Weitere Energiedaten
Energieträger
Gas
Heizungsart
Zentralheizung
Details
Objektbeschreibung
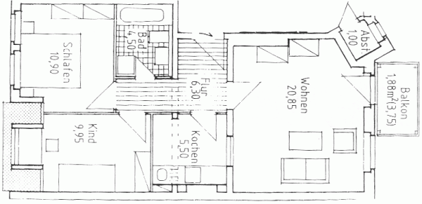
Die gemütliche Drei-Zimmer-Wohnung befindet sich im Dachgeschoss im Hinterhaus eines ca. 1900 erbauten und 1998 sanierten, denkmalgeschützten Mehrfamilienhauses mit 21 Wohneinheiten. Die Wohnung bietet ein Wohnzimmer, 2 Schlafzimmer, einer Küche, ein innenliegendes Bad und einen Flur. Der vom Wohnzimmer aus zu begehende...
Ausstattung
- innenliegendes Bad mit Wanne und Dusche, Waschbecken, WC und Waschmaschinenanschluss
- Einbauküche
- Fliesen- und Laminatböden
- Gas-Zentralheizung zur Wärme- und Warmwasserversorgung
Weitere Informationen
Sonstiges
Ein Energieausweis ist vorhanden.
Energieausweistyp: Verbrauchsausweis
Gebäudejahr: 1900
Baujahr Anlagentechnik: 1998
Endenergiekennwert: 118,4 kWh/(m²*a)
Energieeffizienzklasse: D
Energieverbrauch für Warmwasser enthalten: ja
Wesentlicher Energieträger: Erdgas
Ausgestellt am...
Anbieter der Immobilie
Online-ID: 2nezp52
Referenznummer: 400490#8X03y
Finde Angebote wie dieses
Hier geht es zu unserem Impressum, den Allgemeinen Geschäftsbedingungen, den Hinweisen zum Datenschutz und nutzungsbasierter Online-Werbung.