

Gruttmann Immobilien GmbH
Frau Britta C. Gruttmann
+49 ···
Nr. anzeigenPreise & Kosten
Provision für Käufer
Gemäß der gesetzlichen Regelung zur Teilung der Maklercourtage beträgt die Provision 3,57% des Kaufpreises inklusive 19% MwSt. jeweils in gleicher Höhe für die Verkäuferseite sowie für die Käuferseite.
Lage
Marzahn ist ein Ortsteil im Berliner Bezirk Marzahn-Hellersdorf und grenzt im Nordosten an das Land Brandenburg mit den Ortschaften Ahrensfelde und Hoheneiche an.
Das Einfamilienhaus befindet sich in einer bevorzugten Wohnlage in Marzahn. Einerseits liegt es verkehrsgünstig und zentral in fußläufiger Entfernung zum...
Das Haus
Kategorie
Einfamilienhaus
Baujahr
1981
Energie & Heizung
Warum sehe ich diese Anzeige? – Du siehst diese Anzeige basierend auf Ihrer Navigation auf unserer Website und den Suchkriterien, die du verwendet hast.
Weitere Energiedaten
Energieträger
Öl
Heizungsart
Zentralheizung
Details
Objektbeschreibung
Das Gebäude wurde 1981 als Fertighaus in Holzständerbauweise auf einem ca. 1.141 m² großen Grundstück
errichtet und die Grundfläche beträgt ca. 208,92 m².
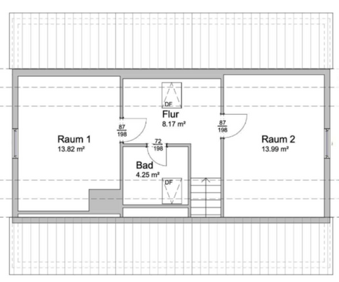
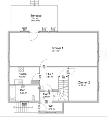
Das Haus ist über einen Windfang begehbar, welcher zu einem geräumigen Eingangsbereich führt und Zugang zu allen Räumen des Erdgeschosses bietet. Hier befinden...
Weitere Informationen
Ein Energieausweis liegt zur Besichtigung vor.
Anbieter der Immobilie

Online-ID: 2nf2756
Referenznummer: VK-25562
Finde Angebote wie dieses
Hier geht es zu unserem Impressum, den Allgemeinen Geschäftsbedingungen, den Hinweisen zum Datenschutz und nutzungsbasierter Online-Werbung.