
ÖRAG Immobilien Vermittlung GmbH
Frau Lara Steinbacher
004 ···
Nr. anzeigenPreise & Kosten
inkl. Betriebskosten
Kaution
2.308,00
Provision für Mieter
provisionsfrei für den Mieter inkl. MwSt.
Warum sehe ich diese Anzeige? – Du siehst diese Anzeige basierend auf Ihrer Navigation auf unserer Website und den Suchkriterien, die du verwendet hast.
Lage
Die Siebenbrunnengasse 8 befindet sich im 5. Wiener Gemeindebezirk, Margareten, einer zentral gelegenen und lebendigen Gegend Wiens. Die Umgebung zeichnet sich durch eine Mischung aus historischen Altbauten und modernen Einrichtungen aus. In unmittelbarer Nähe finden Sie eine Vielzahl von Geschäften, Restaurants und Cafés...
Die Wohnung
Wohnungslage
2. Geschoss
Bezug
ab sofort
Wohnanlage
Energie & Heizung
Warum sehe ich diese Anzeige? – Du siehst diese Anzeige basierend auf Ihrer Navigation auf unserer Website und den Suchkriterien, die du verwendet hast.
Heizwärmebedarf (HWB)
44,70 kWh/(m²·a)
Gesamtenergieeffizienz (fGEE)
1,20
Weitere Energiedaten
Heizungsart
Zentralheizung
Details
Objektbeschreibung
Kurzbeschreibung
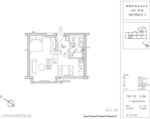
In bester Lage direkt an der Siebenbrunnengasse im 5. Bezirk gelangt gelangt diese ca. 30m² große 1 Zimmer zur befristeten Vermietung.
Objekt
In bester Lage direkt an der Siebenbrunnengasse im 5. Bezirk gelangt gelangt diese ca. 30m² große 1 Zimmer zur befristeten Vermietung.
Ihr neuer...
Ausstattung
Diese Objekt bietet Ihnen:
- Kellerabteil
- Fahrrad/Kinderwagenabstellraum
- allgemeine Dachterrasse
- Fitnessraum
Die Wohnung wird auf 10 Jahre befristet vermietet. Kündigungsverzicht 1 Jahr und 3 Monate Kündigungsfrist.
Preisinformation
Nettokaltmiete: 592,67 EUR
Weitere Informationen
Sonstiges
Wir sind eine Tochtergesellschaft der ÖRAG-Österreichische Realitäten AG, Wien, genannt ÖRAG, und es besteht daher unter Umständen ein sonstiges wirtschaftliches Naheverhältnis im Sinne des Maklergesetzes zur ÖRAG und ihren anderen Tochtergesellschaften in Österreich. Das Naheverhältnis zur ÖRAG ergibt sich zB...
Anbieter der Immobilie
Online-ID: 2nf2z5a
Referenznummer: 109268459
Finde Angebote wie dieses
Hier geht es zu unserem Impressum, den Allgemeinen Geschäftsbedingungen, den Hinweisen zum Datenschutz und nutzungsbasierter Online-Werbung.