
Herzel Immobilien e.U.
+43 ···
Nr. anzeigenPreise & Kosten
inkl. Betriebskosten
Kaution
3 Bruttomonatsmieten
Provision für Mieter
Gemäß Erstauftraggeberprinzip bezahlt der Abgeber die Provision.
Warum sehe ich diese Anzeige? – Du siehst diese Anzeige basierend auf Ihrer Navigation auf unserer Website und den Suchkriterien, die du verwendet hast.
Die Wohnung
Wohnungslage
3. Geschoss
Bezug
Ab sofort
Wohnanlage
Energie & Heizung
Warum sehe ich diese Anzeige? – Du siehst diese Anzeige basierend auf Ihrer Navigation auf unserer Website und den Suchkriterien, die du verwendet hast.
Heizwärmebedarf (HWB)
57,60 kWh/(m²·a)
Gesamtenergieeffizienz (fGEE)
1,24
Weitere Energiedaten
Energieträger
Fernwärme
Details
Objektbeschreibung
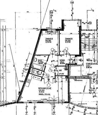
_1040! 3-Zimmer Wohnung mit Gemeinschaftsterrasse nahe Schwarzenbergplatz! WG-geeignet!_
Zur Vermietung gelangt diese ruhig gelegene und _sehr gut aufgeteilte 3-Zimmer Neubauwohnung_ _mit_ _ca. 77,11 m² Wohnfläche _im 3.Lifstock eines gepflegten Hauses, in Toplage nahe Schwarzenbergplatz und...
Preisinformation
Zusätzliche Betriebskosten (z.B.: WW, Heizung, ...) finden Sie aufgeschlüsselt im Angebotstext.
Alle Preise sind zzgl. MWST., Nettokaltmiete: 1.560,00 EUR
Weitere Informationen
Stichworte
Anzahl der Badezimmer: 1, Anzahl der separaten WCs: 1, Bundesland: Wien
Anbieter der Immobilie
Online-ID: 2nffm52
Referenznummer: OBGC20260112105458997387fc74c25
Finde Angebote wie dieses
Hier geht es zu unserem Impressum, den Allgemeinen Geschäftsbedingungen, den Hinweisen zum Datenschutz und nutzungsbasierter Online-Werbung.