

Living Haus
Herr Göran Linke
017 ···
Nr. anzeigenPreise & Kosten
Provision für Käufer
provisionsfrei
Lage
Dieses traumhafte Baugrundstück befindet sich oberhalb des Zschopautals in idyllischer Lage am Stadtrand von Zschopau. Von Ihrer Terrasse aus können Sie hier den traumhaften Blick zum Zschopauer Schloß und über in die grüne Umgebung genießen. Die Medien, außer einem Abwasserkanal, liegen in der Straße vor dem Grundstück. Für...
Das Haus
Kategorie
Bungalow
Energie & Heizung
Warum sehe ich diese Anzeige? – Du siehst diese Anzeige basierend auf Ihrer Navigation auf unserer Website und den Suchkriterien, die du verwendet hast.
Weitere Energiedaten
Haustyp
KfW 40
Heizungsart
Luft-/Wasser-Wärmepumpe, Zentralheizung
Details
Objektbeschreibung
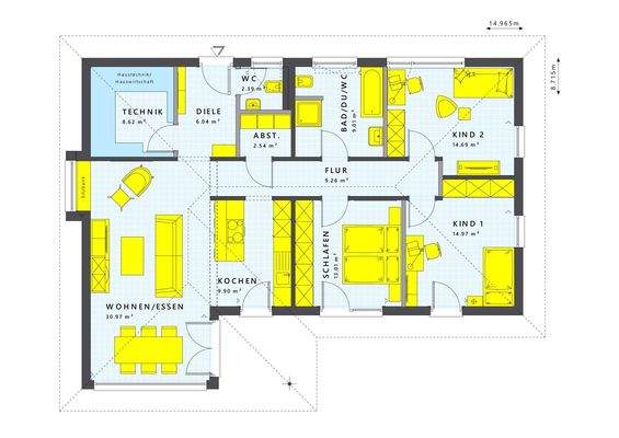
Diesen Bungalow sehen - und sofort verlieben! So geht es vielen unserer Baufamilien, die vom Wohnen mit Urlaubsfeeling träumen - und sicher auch Ihnen! Hier können Sie und Ihre Familie das entspannte Wohnen auf einer Ebene genießen. Der offene Wohn-Koch- und Essbereich ist der geniale Treffpunkt für Ihre ganze Familie. Es...
Ausstattung
Livinghaus - da ist Alles mit drin:
- Grundstücksservice
- Finanzierungsservice
- Hausbau-Förderung
- alle notwendigen Bauherren-Versicherungen
- DGNB-Zertifizierung in Go
- der Architekt für die Baugenehmigungsplanung
Das Alles brauchen Sie sowieso, deshalb bekommen Sie das bei Livinghaus gleich mit...
Weitere Informationen
Sonstiges
Das hier angebotene Grundstück ist im obigen Preis eingerechnet. Es wird ohne zusätzliche Provision (bei einem Maklerangebot wird Vermittlungsprovision fällig) an einen Livinghaus-Bauherren bereitgestellt. Zusätzliche Baunebenkosten müssen noch hinzugerechnet werden, hierüber berate ich Sie gern.
Die...
Anbieter der Immobilie
Living Haus
Donauwörther Straße 5, 09114 Chemnitz

Online-ID: 2nfnv57
Referenznummer: 30269-22552
Finde Angebote wie dieses
Hier geht es zu unserem Impressum, den Allgemeinen Geschäftsbedingungen, den Hinweisen zum Datenschutz und nutzungsbasierter Online-Werbung.