
ohne-makler.net - Immobilien selbst vermarkten
Privat von Marvin Schwiers-Boddien
Kontaktiere den Anbieter schriftlich, es ist keine Telefonnummer hinterlegt.
Preise & Kosten
Provision für Käufer
provisionsfrei
Lage
Das Reihenhaus befindet sich in ruhiger und gefragter Wohnlage im Bremerhavener Stadtteil Lehe. Die Umgebung überzeugt durch grüne Gärten und eine angenehme Nachbarschaft. Einrichtungen des täglichen Bedarfs, Schulen und Kindergärten sind komfortabel erreichbar. Die sehr gute Anbindung an den öffentlichen Nahverkehr sowie die...
Das Haus
Kategorie
Reihenmittelhaus
Baujahr
1937
Bezug
sofort
Energie & Heizung
Warum sehe ich diese Anzeige? – Du siehst diese Anzeige basierend auf Ihrer Navigation auf unserer Website und den Suchkriterien, die du verwendet hast.
Energieausweistyp
Bedarfsausweis
Gebäudetyp
Wohngebäude
Effizienzklasse
F
Endenergiebedarf
168,00 kWh/(m²·a)
Weitere Energiedaten
Energieträger
Gas
Heizungsart
Zentralheizung
Details
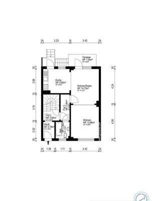
Objektbeschreibung
Dieses Reihenhaus bietet mit seinen 8 Zimmern eine ausgezeichnete Basis für kreative Gestaltungsideen auf rund 143,60m² für z.B.:
- Familien, die sich in der Raumaufteilung durch individuelle Gestaltung verwirklichen möchten
- Mehrgenerationen-Haushalte mit getrennten Rückzugs- und Arbeitsbereichen
- Wohnen plus...
Ausstattung
Balkon, Terrasse, Garten, Keller, Duschbad, Gäste-WC, Laminat, Fliesen
Weitere Informationen
Sonstiges
Heizungsart: Zentralheizung
Energieträger: Gas
Nutzen Sie die Chance, ein echtes Juwel in Bremerhaven-Lehe zu Ihrem persönlichen Meisterwerk zu verwandeln. Renovierungsbedarf bedeutet hier nicht Unsicherheit, sondern eine Einladung zu Kreativität, Mut und Selbstbestimmung.
Bitte keine...
Anbieter der Immobilie
ohne-makler.net - Immobilien selbst vermarkten
Humboldtstr. 25 A, 21509 Glinde
Privat von Marvin Schwiers-Boddien
Dein Ansprechpartner
Kontaktiere den Anbieter schriftlich, es ist keine Telefonnummer hinterlegt.
Online-ID: 2nfqg55
Referenznummer: 420973
Finde Angebote wie dieses
Hier geht es zu unserem Impressum, den Allgemeinen Geschäftsbedingungen, den Hinweisen zum Datenschutz und nutzungsbasierter Online-Werbung.