
Crozilla.com
Palace Real Estate
+38 ···
Nr. anzeigenPreise & Kosten
Provision für Käufer
Bitte beachte, das Angebot kann bei Vertragsabschluss die Zahlung einer Provision beinhalten. Weitere Informationen erhältst Du vom Anbieter.
Das Haus
Baujahr
2025
Details
Objektbeschreibung
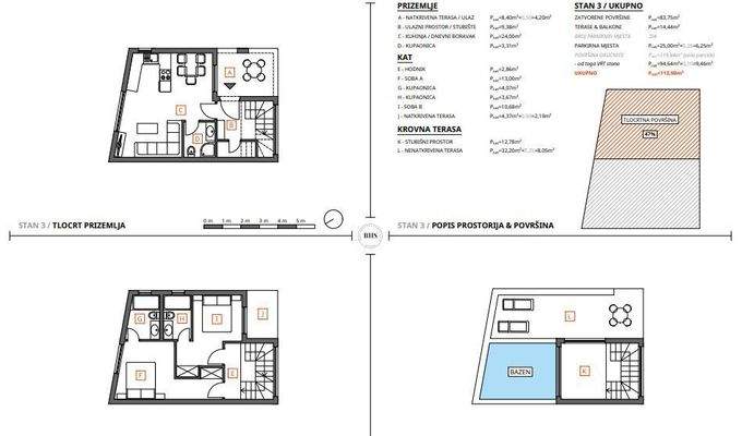
Verkauf von neuen modernen Doppelhaushälften mit einem Pool auf der Dachterrasse.
Hausspezifikationen:
Der Aufteilungsprozess wird als dreistöckige Wohnung durchgeführt.
Gesamtfläche: 114 m2.
Hof: 120 m2 (teilweise Grünfläche und Parkplatz für zwei Autos).
Drei Etagen, zwei Schlafzimmer, drei...
Weitere Informationen
Stichworte
Anzahl der Schlafzimmer: 2, Anzahl der Badezimmer: 3
Anbieter der Immobilie
Crozilla.com
Nova cesta 60, 10000 ZAGREB
Online-ID: 2nfqm56
Referenznummer: 15553101_11
Finde Angebote wie dieses
Hier geht es zu unserem Impressum, den Allgemeinen Geschäftsbedingungen, den Hinweisen zum Datenschutz und nutzungsbasierter Online-Werbung.