
LEG Wohnen NRW GmbH
Frau Leonie Charlier
02 ···
Nr. anzeigenPreise & Kosten
nicht in Warmmiete enthalten
Provision für Mieter
Bitte beachte, das Angebot kann bei Vertragsabschluss die Zahlung einer Provision beinhalten. Weitere Informationen erhältst Du vom Anbieter.
Warum sehe ich diese Anzeige? – Du siehst diese Anzeige basierend auf Ihrer Navigation auf unserer Website und den Suchkriterien, die du verwendet hast.
Lage
Der Stadtteil Berg Fidel ist geprägt durch eine dichte Wohnbebauung mit vielen Anwohnern und einer stabilen Infrastruktur. Einrichtungen der Nahversorgung wie Supermärkte, Apotheken und weitere Dienstleister sind fußläufig erreichbar. Die gute Anbindung an den öffentlichen Nahverkehr macht den Standort besonders geeignet für...
Büro-/Praxisfläche
Kategorie
Praxis
Baujahr
1970
Bezug
16.05.2026
Geschoss
Erdgeschoss
Energie & Heizung
Warum sehe ich diese Anzeige? – Du siehst diese Anzeige basierend auf Ihrer Navigation auf unserer Website und den Suchkriterien, die du verwendet hast.
Energieausweistyp
Bedarfsausweis
Gebäudetyp
Wohngebäude
Baujahr laut Energieausweis
1970
Gültigkeit
01.01.2014 bis 01.04.2031
Endenergiebedarf
211,00 kWh/(m²·a)
Weitere Energiedaten
Energieträger
Gas
Details
Objektbeschreibung
Für eine etablierte allgemeinärztliche Praxis in Münster, Hogenbergstraße 15, wird im Rahmen eines ausgeschriebenen Kassensitzes eine Nachbesetzung gesucht.
Die Praxis ist modern ausgestattet und sofort betriebsbereit. Praxisräume sowie Inventar können nach Absprache mit dem derzeitigen Praxisinhaber übernommen werden...
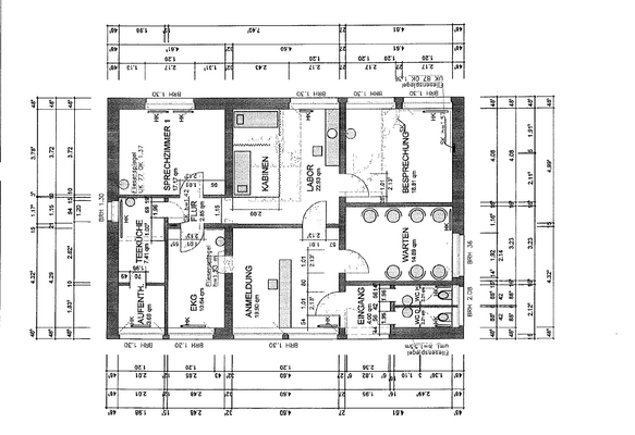
Ausstattung
- Empfangsbereich
- Wartezimmer
- Laborbereich
- 3 Sprechzimmer
- Küche
- WC Herren/Damen
Preisinformation
Nettokaltmiete: 1.239,00 EUR
Weitere Informationen
Sonstiges
Sie wünschen einen Besichtigungstermin? Wir freuen uns auf Sie!
Wir von der LEG sind Ihre kompetenten Vermieter mit vielen Jahrzehnten Erfahrung in der Wohnungswirtschaft.
Gerne beraten wir Sie bei der Kaution als Ratenzahlung. Zudem können Sie über plusForta eine Kautionsbürgschaft hinterlegen...
Anbieter der Immobilie

LEG Wohnen NRW GmbH
Flughafenstraße 99, 40474 Düsseldorf
Online-ID: 2nftm52
Referenznummer: 926-40003-M
Finde Angebote wie dieses
Hier geht es zu unserem Impressum, den Allgemeinen Geschäftsbedingungen, den Hinweisen zum Datenschutz und nutzungsbasierter Online-Werbung.