

Veronika Schenkyr Immobilien
Frau Veronika Balzer
017 ···
Nr. anzeigenPreise & Kosten
Provision für Käufer
provisionsfrei
Lage
Der beschauliche Ort Oberstaufen im bayerisch-schwäbischen Landkreis Oberallgäu zieht Einheimische wie Besucher schnell in seinen Bann. Sei es der fantastische Panoramablick auf die Allgäuer Bergwelt, das Heilklima in Kombination mit der für den Ort bekannten Schroth-Kur oder die Kombination aus Genuss, Tradition und...
Die Wohnung
Wohnungslage
Erdgeschoss
Wohnanlage
Energie & Heizung
Warum sehe ich diese Anzeige? – Du siehst diese Anzeige basierend auf Ihrer Navigation auf unserer Website und den Suchkriterien, die du verwendet hast.
Weitere Energiedaten
Heizungsart
Fußbodenheizung, Zentralheizung
Details
Objektbeschreibung
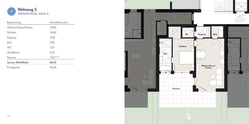
2 Zimmer Erdgeschoßwohnung
Tageslichtbad mit Dusche und Wanne
separate Gästetoilette
Abstellraum
Südterrasse
Privatgarten
Tiefgarage
gemeinschaftlicher Fahrradraum
Anbieter der Immobilie
Veronika Schenkyr Immobilien
Knottenried 10, 87509 Immenstadt

Online-ID: 2ng6753
Finde Angebote wie dieses
Hier geht es zu unserem Impressum, den Allgemeinen Geschäftsbedingungen, den Hinweisen zum Datenschutz und nutzungsbasierter Online-Werbung.