

Gerd Kühle Immobilien GmbH
Herrn Gerd Kühle
030 ···
Nr. anzeigenPreise & Kosten
Provision für Käufer
3,57% inkl. MwSt.
Provision fällig bei Abschluß eines notariellen Kaufvertrages
Lage
Die Umgebung überzeugt mit zahlreichen Einkaufsmöglichkeiten, sowie Restaurants, Kitas, Schulen und medizinischer Versorgung.
In dieser Bestlage ist eine perfekte Anbindung an den öffentlichen Nahverkehr selbstverständlich. Die U5, sowie Tram – und Buslinien sind fußläufig schnell zu erreichen.
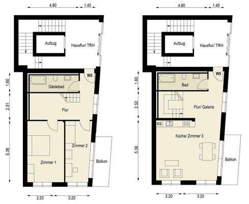
Die Wohnung
Kategorie
Maisonette
Wohnungslage
3. Geschoss
Bezug
Ab sofort
Derzeitige Nutzung
frei
Wohnanlage
Energie & Heizung
Warum sehe ich diese Anzeige? – Du siehst diese Anzeige basierend auf Ihrer Navigation auf unserer Website und den Suchkriterien, die du verwendet hast.
Weitere Energiedaten
Energieträger
Fernwärme
Heizungsart
Fußbodenheizung, Zentralheizung
Details
Objektbeschreibung
Im begehrten Friedrichshain stehen 24 großzügige Wohnungen in einem modernen Neubau mit fünf Etagen bezugsfertig zur Verfügung.
Die 2- bis 6-Zimmer-Wohnungen überzeugen mit hochwertiger Ausstattung, hohen Decken (2,85 m) sowie Balkonen, Wintergärten und Terrassen – für höchsten Wohnkomfort.
Die Wohnungsgrößen...
Ausstattung
Große Fensterfronten sorgen in den hohen Räumen für eine helle und freundliche Wohnatmosphäre.
Alle Wohnungen haben einen Balkon oder eine Terrasse und ein Großteil zusätzlich einen Wintergarten, welcher für zusätzliches Licht sorgt.
In den Wohnräumen ist hochwertigster Steinboden in fischgrät mit...
Weitere Informationen
Besichtigungstermine
Für Rückfragen erreichen Sie uns unter der Rufnummer 0172-326 11 93
Anbieter der Immobilie
Gerd Kühle Immobilien GmbH
Pistoriusstr. 29, 13086 Berlin

Online-ID: 2ng6e5a
Referenznummer: 5-69e9looe43j
Finde Angebote wie dieses
Hier geht es zu unserem Impressum, den Allgemeinen Geschäftsbedingungen, den Hinweisen zum Datenschutz und nutzungsbasierter Online-Werbung.