
Waldberg Immobilien GmbH
Herr Hendrik Wenderoth
004 ···
Nr. anzeigenPreise & Kosten
Provision für Käufer
3,57 inkl. MwSt.
Lage
Das angebotene Zweifamilienhaus befindet sich in der idyllischen Ortschaft Waggum, einem charmanten Stadtteil im Norden von Braunschweig. Diese ruhige, familienfreundliche Gegend bietet eine ideale Kombination aus naturnahem Wohnen und guter Anbindung an die städtische Infrastruktur. Umgeben von malerischen Landschaften und...
Das Haus
Kategorie
Mehrfamilienhaus
Baujahr
2003
Bezug
Sofort
Energie & Heizung
Warum sehe ich diese Anzeige? – Du siehst diese Anzeige basierend auf Ihrer Navigation auf unserer Website und den Suchkriterien, die du verwendet hast.
Weitere Energiedaten
Energieträger
Gas
Heizungsart
offener Kamin, Zentralheizung
Details
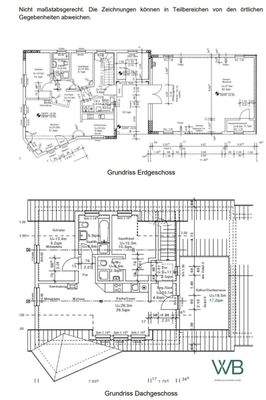
Objektbeschreibung
Willkommen zu Ihrem neuen Zuhause in Braunschweig, Waggum! Dieses beeindruckende Zweifamilienhaus mit Einliegerwohnung steht Ihnen ab sofort zum Kauf zur Verfügung. Das im Jahr 2003 errichtete Haus befindet sich aktuell im Rohbauzustand und bietet Ihnen so die Möglichkeit, es ganz nach Ihren Vorstellungen zu...
Ausstattung
- Kaminofen in jeder Wohnung
- Balkon im OG
- Zentralheizung
- Gasheizung
- Kunststoff-Hauseingangstür mit Wärmedämmverglasung
- Holztüren mit Eigenkonstruktionszargen
- Kunststofffenster mit Wärmedämmverglasung und Rollläden
- Separates Monteurs-Zimmer inkl. Bad (Rohbau)
Weitere Informationen
Sonstiges
**Immobilienbeschreibung: Einzigartige Gelegenheit: Sanierungsbedürftiges Grundstück auf Erbbaurechtbasis**
Wir freuen uns, Ihnen ein Grundstück im Rahmen eines Erbbaurechts präsentieren zu dürfen, das Ihnen ab sofort zur Verfügung steht. Diese Liegenschaft bietet eine herausragende Gelegenheit für...
Anbieter der Immobilie
Online-ID: 2ng7z53
Referenznummer: 33002026
Finde Angebote wie dieses
Hier geht es zu unserem Impressum, den Allgemeinen Geschäftsbedingungen, den Hinweisen zum Datenschutz und nutzungsbasierter Online-Werbung.