

bk-Jochen Blumer
Herrn Jochen Blumer
077 ···
Nr. anzeigenPreise & Kosten
Provision für Käufer
provisionsfrei
Lage
Das geplante Traumhaus entsteht in einer der begehrtesten Wohnlagen der Halbinsel Reichenau - ruhig, naturnah und gleichzeitig hervorragend angebunden. Umgeben von gepflegten Gärten, altem Baumbestand und der unverwechselbaren Bodenseelandschaft bietet diese Lage ein Höchstmaß an Lebensqualität für Familien ebenso wie für...
Die Immobilie
Zu diesem Angebot wurden vom Anbieter keine weiteren Daten hinterlegt. Für weitere Informationen bitte den Anbieter kontaktieren.
Nach Informationen fragenDetails
Objektbeschreibung
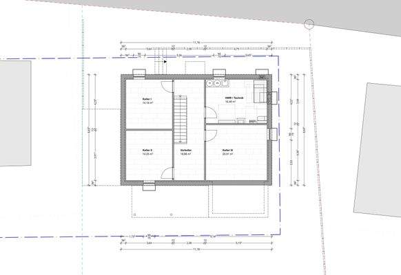
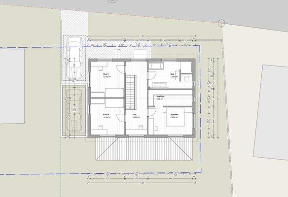
Auf einem 990 m² großem Grundstück in begehrter Lage auf der Reichenau entsteht diese moderne, schlüsselfertige Neubau-Villa; nur ca. 450 Meter vom Bodensee entfernt.
Der geplante Neubau beindruckt durch seine stilvolle Architektur, großzügige Raumaufteilung und nachhaltige, energieeffiziente Bauweise.
Das Haus bietet...
Ausstattung
Highlights auf einen Blick:
- 990 m² Grundstück; nur 450m vom Bodensee
- Neubau-Villa ist QNG zertifizierbar
- großzügiger Wohn- und Essbereich mit offener Küche
- Speisekammer
- Gäste-WC mit Dusche, Schlafzimmer sowie
Gäste-/Arbeitszimmer im Erdgeschoss
- 3 Schlafzimmer auf einer Etage im...
Preisinformation
2 Stellplätze
Weitere Informationen
Sonstiges
Die geplante Neubau-Villa ist QNG zertifizierbar. Somit ist für Sie (Familie mit 1-2 Kinder) die höchste Förderstufe der KfW-Förderung "Wohneigentum für Familien" möglich und Sie profitieren von zinsgünstigen Krediten, die Ihnen die Finanzierung noch einmal zusätzlich erleichtern. Ob für Sie weitere...
Anbieter der Immobilie
bk-Jochen Blumer
Föhrenweg 3, 78315 Radolfzell am Bodensee

Online-ID: 2nglv56
Referenznummer: 360
Finde Angebote wie dieses
Hier geht es zu unserem Impressum, den Allgemeinen Geschäftsbedingungen, den Hinweisen zum Datenschutz und nutzungsbasierter Online-Werbung.