
Kern-Haus AG, Niederlassung Erfurt
036 ···
Nr. anzeigenPreise & Kosten
Provision für Käufer
provisionsfrei
Lage
Das Grundstück befindet sich in Rausdorf, südöstlich der Universitätsstadt Jena. In nur wenigen Fahrtminuten erreichen Sie die pulsierende Innenstadt Jenas mit zahlreichen Angeboten in den Bereichen Kultur, Gastronomie, Freizeit und Bildung.
Alle Annehmlichkeiten des täglichen Bedarfs sind ebenso in der nahegelegenen...
Das Haus
Kategorie
Einfamilienhaus
Baujahr
2026
Energie & Heizung
Warum sehe ich diese Anzeige? – Du siehst diese Anzeige basierend auf Ihrer Navigation auf unserer Website und den Suchkriterien, die du verwendet hast.
Energieausweistyp
Bedarfsausweis
Gebäudetyp
Wohngebäude
Effizienzklasse
A+
Endenergiebedarf
13,96 kWh/(m²·a)
Weitere Energiedaten
Heizungsart
Fußbodenheizung, Zentralheizung
Details
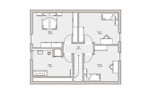
Objektbeschreibung
Lassen Sie sich begeistern von unserem Architektenhaus Jaro. Der Grundriss überzeugt in jeder Hinsicht, denn im Erdgeschoss erwartet Sie ein großzügiger, offener Wohnbereich mit Essbereich und einer offenen Küche. Hier werden Wohnträume wahr - für jedes Familienmitglied findet sich genug Platz zur Umsetzung der eigenen...
Ausstattung
4 Zimmer, offene Küche, Diele, Flur, Bad, WC, Hauswirtschaftsraum
Das gezeigte Traumhaus im Überblick:
+ Massivhaus im Sinne der Ausstattungsbeschreibung "Nestbau"
+ Zukunftsorientierte Energieausstattung in Form einer Luft-Wasser-Wärmepumpe und Fußbodenheizung
Beste Markenausstattung in jedem...
Weitere Informationen
Sonstiges
Kern-Haus
Kern-Haus baut individuelle und massive Architektenhäuser zu einem attraktiven Preis-Leistungs-Verhältnis - und das bereits mit einer Erfahrung seit 1980. Die Kern-Haus AG ist ein deutscher, inhabergeführter Massivhausanbieter mit Sitz im rheinland-pfälzischen Ransbach-Baumbach. Kern-Haus setzt...
Anbieter der Immobilie
Online-ID: 2ngx95a
Referenznummer: KEF 73353
Finde Angebote wie dieses
Hier geht es zu unserem Impressum, den Allgemeinen Geschäftsbedingungen, den Hinweisen zum Datenschutz und nutzungsbasierter Online-Werbung.