
Gecko Maklerverbund GmbH & Co. KG
048 ···
Nr. anzeigenPreise & Kosten
Provision für Käufer
5,95% inkl. gestzl. MwSt
Lage
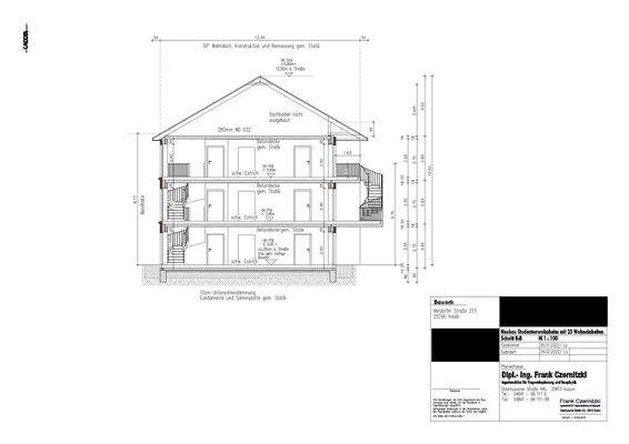
Heide ist der wirtschaftliche Motor Dithmarschens - eine Stadt im Wandel, die sich in den letzten Jahren zu einem der bedeutendsten Wachstumsstandorte an der Westküste Schleswig-Holsteins entwickelt hat. Das genehmigte Bauvorhaben umfasst eine Gesamtwohnfläche von rund 1.320 m² auf einem ca. 2.126 m² großen Grundstück...
Das Haus
Kategorie
Mehrfamilienhaus
Geschosse
2 Geschosse
Baujahr
2026
Bezug
sofort
Energie & Heizung
Warum sehe ich diese Anzeige? – Du siehst diese Anzeige basierend auf Ihrer Navigation auf unserer Website und den Suchkriterien, die du verwendet hast.
Weitere Energiedaten
Energieträger
Elektro
Details
Objektbeschreibung
Das geplante Wohnensemble in Heide steht für moderne Architektur, nachhaltige Bauweise und zukunftssichere Wertentwicklung.
Auf dem rund 2.126 m² großen Grundstück entsteht ein durchdachtes Wohnprojekt mit 25 Wohneinheiten, das durch eine klare Linienführung, effiziente Grundrisse und eine hochwertige technische Planung im...
Ausstattung
Dieses Projekt ist bis ins Detail auf Nachhaltigkeit, Energieeffizienz und modernen Wohnkomfort ausgerichtet. Die genehmigte Planung sieht eine Gesamtwohnfläche von ca. 1.320 m² vor, ergänzt durch rund 58 m² Nutzfläche in einem separaten Nebengebäude mit Abstell- und Technikräumen.
Investoren und spätere Bewohner...
Preisinformation
25 Stellplätze
Weitere Informationen
Sonstiges
Bitte beachten Sie:
Wir bearbeiten ausschließlich Anfragen, die vollständige Kontaktdaten einschließlich Adresse und Telefonnummer enthalten.
Alle Angaben in diesem Exposé basieren auf Informationen, die der Verkäufer oder Dritte zur Verfügung gestellt haben. Die Firma Gecko Maklerverbund...
Anbieter der Immobilie
Online-ID: 2ngzq52
Referenznummer: Gecko 5068
Finde Angebote wie dieses
Hier geht es zu unserem Impressum, den Allgemeinen Geschäftsbedingungen, den Hinweisen zum Datenschutz und nutzungsbasierter Online-Werbung.