
aestates GmbH
Fabio Rafii
040 ···
Nr. anzeigenPreise & Kosten
Provision für Käufer
3,57% inkl. MwSt.
Der Makler hat mit dem Verkäufer einen Maklervertrag in gleicher Höhe vereinbart.
Lage
Die Gemeinde Itzstedt liegt im Süden Schleswig-Holsteins im Kreis Segeberg und zeichnet sich durch ihre naturnahe Umgebung sowie ihre verkehrsgünstige Lage aus. Eingebettet in eine landschaftlich reizvolle Region mit Wäldern, Wiesen und kleinen Seen, bietet Itzstedt eine hohe Lebensqualität und zugleich eine gute Anbindung an...
Das Haus
Kategorie
Einfamilienhaus
Baujahr
1961
Energie & Heizung
Warum sehe ich diese Anzeige? – Du siehst diese Anzeige basierend auf Ihrer Navigation auf unserer Website und den Suchkriterien, die du verwendet hast.
Energieausweistyp
Bedarfsausweis
Gebäudetyp
Wohngebäude
Wesentliche Energieträger
Strom
Gültigkeit
21.07.2025 bis 21.07.2035
Effizienzklasse
A
Endenergiebedarf
36,00 kWh/(m²·a)
Weitere Energiedaten
Energieträger
Elektro
Heizungsart
offener Kamin
Details
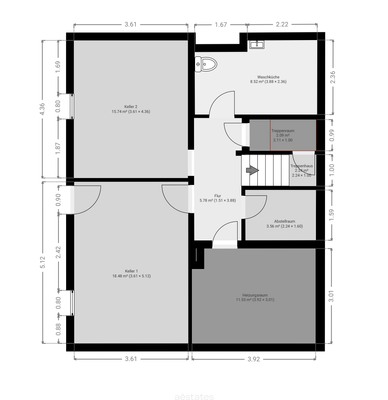
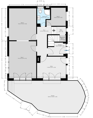
Objektbeschreibung
Dieses großzügige Einfamilienhaus wurde im Jahr 1961 auf einem 991 m2 großen Grundstück erbaut und 2012 umfassend modernisiert.
Im Zuge der Sanierung wurden sowohl energetische Maßnahmen umgesetzt als auch das Dachgeschoss zu Wohnzwecken ausgebaut. Mit einer Wohnfläche von ca. 137 m2, insgesamt fünfeinhalb Zimmern...
Ausstattung
Modernisierung und Renovierungsmaßnahmen 2012:
- Kernsanierung der Räume
- Vom Statiker geprüfte Änderungen des Grundrisses
- Haustür und Innentüren
- 3 - fach verglaste Kunststofffenster
- Dacheindeckung mit Dämmung und Tonziegeln
- Komplette Isolierung des Hauses incl. der Kellerwände
(mineralischen...
Preisinformation
5 Stellplätze
Weitere Informationen
Stichworte
Stellplatz vorhanden, Anzahl der Schlafzimmer: 4, Anzahl der Badezimmer: 3, Anzahl Balkone: 1, Balkon-Terrassen-Fläche: 38,00 m², Bundesland: Schleswig-Holstein, modernisiert: 2025, modernisiert
Dokumente
Anbieter der Immobilie
Online-ID: 2nh4k5c
Referenznummer: ID-560
Finde Angebote wie dieses
Hier geht es zu unserem Impressum, den Allgemeinen Geschäftsbedingungen, den Hinweisen zum Datenschutz und nutzungsbasierter Online-Werbung.