
Werde Eigentümer GmbH
Herr Sebastian Ghesquier
+49 ···
Nr. anzeigenPreise & Kosten
Provision für Käufer
provisionsfrei
Lage
EIN SCHLOSS; DIE SPREE & GANZ VIEL KIEZCHARME
Charlottenburg ist die Seele der Stadt. Es verkörpert ein authentisches Berlin - eben genau so, wie Besucher und Bewohner sich ihre Stadt wünschen. Die Auszeichnung Lieblingskiez hätte die Gegend rund um die Leibnizstr. sicher verdient. Hier vereint sich das impulsive...
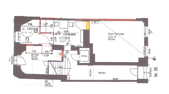
Büro-/Praxisfläche
Kategorie
Bürofläche
Baujahr
1904
Bezug
ab sofort
Geschoss
Erdgeschoss
Energie & Heizung
Warum sehe ich diese Anzeige? – Du siehst diese Anzeige basierend auf Ihrer Navigation auf unserer Website und den Suchkriterien, die du verwendet hast.
Wärme
Energieausweistyp
Verbrauchsausweis
Gebäudetyp
Nicht-Wohngebäude
Wesentliche Energieträger
Fernwärme
Gültigkeit
28.05.2019 bis 28.05.2029
Endenergieverbrauch (Wärme)
104,50 kWh/(m²·a)
Weitere Energiedaten
Energieträger
Fernwärme
Details
Objektbeschreibung
ARBEITEN MIT (JUGEND)STIL
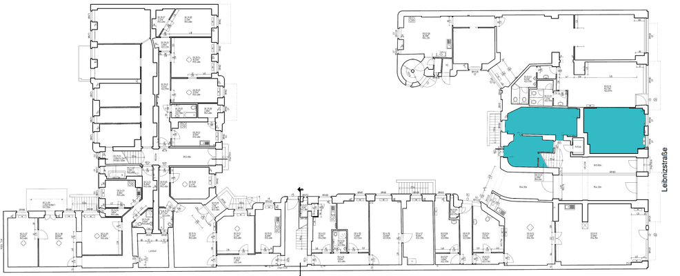
Das Gebäude liegt in der Leibnizstraße 35. Hier genoss in der Gründerzeit die feine Gesellschaft beim Nachmittagstee den Blick auf die vorbeifahrenden Kutschen der "Hoheiten" auf ihrem Weg zum Schloss Charlottenburg.
Die Fassade der Leibnizstr.35 mit ihren Säulenapplikationen und...
Weitere Informationen
Sonstiges
Für die Einheit liegt eine Baugenehmigung vor. Bitte entnehmen Sie den aktuellen Stand unserem Exposé und den Bildern.
Gerne geben wir Ihnen auch einen persönlichen Eindruck bei einem Besichtigungstermin
Dieses Angebot richtet sich sowohl an Selbstnutzerinnen und Selbstnutzer zum zeitnahen Bezug als...
Anbieter der Immobilie
Werde Eigentümer GmbH
Töpferwall 2a, 17207 Röbel/Müritz
Online-ID: 2nh6e5b
Referenznummer: WE260130-15-WE2
Finde Angebote wie dieses
Hier geht es zu unserem Impressum, den Allgemeinen Geschäftsbedingungen, den Hinweisen zum Datenschutz und nutzungsbasierter Online-Werbung.