

DFI-Immobilien UG
Herr Joachim Kuhn DFI-Immobilien UG
073 ···
Nr. anzeigenPreise & Kosten
Provision für Käufer
4,76 %
Lage
Das Haus befindet sich in einer ruhigen Wohnlage in Mindelheim, einer charmanten Stadt in Bayern. Mindelheim liegt im Unterallgäu und beeindruckt mit seiner historischen Altstadt und dem malerischen Fluss Mindel, der durch die Stadt fließt. Der Teil, in dem sich die Immobilie befindet, bietet eine angenehme Atmosphäre und ist...
Das Haus
Kategorie
Doppelhaushälfte
Baujahr
2023
Energie & Heizung
Warum sehe ich diese Anzeige? – Du siehst diese Anzeige basierend auf Ihrer Navigation auf unserer Website und den Suchkriterien, die du verwendet hast.
Weitere Energiedaten
Energieträger
Gas
Heizungsart
Zentralheizung
Details
Objektbeschreibung
Einfach mal Reinschauen!!!! Neuwertig wie Erstbezug!!!
Adresse
Adresse
87719 Mindelheim, Unterallgäu (Kreis)
Die vollständige Adresse der Immobilie erhalten Sie vom Anbieter.
Auf Karte zeigen
Was kostet ein Umzug hierher?
Fahrzeit (z.B. zur Arbeit, Kita…)
Travel Time
Lassen Sie sich die Fahrzeit...
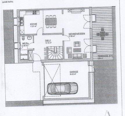
Ausstattung
Fenster: Kunststoff-Fenster 3 Fach
Böden: Vinylboden , Fliesen, Parkett
Sanitär: EG Dusche und WC
OG: Dusche, Badewanne, WC
Heizung: Fernwärme , Fußbodenheizung
Einbauküche
diverse Möbel können übernommen werden.
Kellerräume
Wasser Enthärtungsanlage
Garage
Terrasse
Weitere Informationen
Energieausweis liegt bei Besichtigung vor!!!!
Sollten wir Ihr Interesse geweckt haben und Sie haben Fragen oder möchten einen Besichtigungstermin vereinbaren, erreichen Sie uns unter den folgenden Kontaktdaten.
Wir freuen uns von Ihnen zu hören!
*************** Wichtig ***************
Für die Zusendung...
Anbieter der Immobilie
DFI-Immobilien UG
Beckenkreuz 9/3, 89471 Laupheim

Online-ID: 2nhca56
Referenznummer: 87719
Finde Angebote wie dieses
Hier geht es zu unserem Impressum, den Allgemeinen Geschäftsbedingungen, den Hinweisen zum Datenschutz und nutzungsbasierter Online-Werbung.