
ohne-makler.net - Immobilien selbst vermarkten
Privat von Hendrik Schulze
040 ···
Nr. anzeigenPreise & Kosten
nicht in Warmmiete enthalten
Kaution
4.300,00
Provision für Mieter
provisionsfrei
Warum sehe ich diese Anzeige? – Du siehst diese Anzeige basierend auf Ihrer Navigation auf unserer Website und den Suchkriterien, die du verwendet hast.
Lage
-- Ausstellungszentrum-Braak: Hier bieten 5 Firmen hochwertige Produkte rund um Haus und Garten an: Über Wintergärten, Fenster, Haustüren, Markisen, Lofttüren, Treppen sind hier entsprechende Fachbetriebe ansässig. Kunden schätzen diese Vielfältigkeit gepaart mit individueller Fachkompetenz. Das Ausstellungszentrum hat einen...
Die Ladenfläche
Kategorie
Ausstellungsfläche
Baujahr
1990
Bezug
sofort
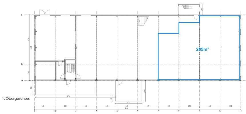
1. Geschoss
Energie & Heizung
Warum sehe ich diese Anzeige? – Du siehst diese Anzeige basierend auf Ihrer Navigation auf unserer Website und den Suchkriterien, die du verwendet hast.
Wärme
Strom
Energieausweistyp
Verbrauchsausweis
Gebäudetyp
Nicht-Wohngebäude
Endenergieverbrauch (Wärme)
58,00 kWh/(m²·a)
Endenergieverbrauch (Strom)
16,00 kWh/(m²·a)
Weitere Energiedaten
Energieträger
Gas
Heizungsart
Zentralheizung
Details
Objektbeschreibung
Wählen Sie aus wie Sie diese Fläche nutzen wollen - das Gebäude bietet viele Möglichkeiten.
Die Fläche befindet sich im 1.OG des bekannten und etablierten Fachzentrums für hochwertige Haus & Garten Produkte im Ausstellungszentrum-Braak. Neben den entsprechenden Firmen rund um das Thema Garten befindet sich dort...
Ausstattung
Fahrstuhl, Barrierefrei
Bemerkungen:
Zum angebotenem Preis bietet die Mietfläche die auf den Fotos abgebildete Ausstattung. Fenster zu mehreren Seiten, Fahrstuhlzugang, Heizungen, LED-Licht, usw. sind vorhanden.
WCs und Kaffeeküchen können im Erdgeschoss mitgenutzt werden (separate Kunden-WCs als auch...
Preisinformation
1 Stellplatz
Nettokaltmiete: 2.150,00 EUR
Weitere Informationen
Sonstiges
Heizungsart: Zentralheizung
Energieträger: Gas
Makleranfragen nicht erwünscht. Nach § 7 UWG sind unaufgeforderte Kontaktaufnahmen durch Makler ohne ausdrückliche Einwilligung des Empfängers verboten!
ohne-makler (OM) ist weder Anbieter noch Vermittler der Immobilie. OM betreibt eine Plattform...
Anbieter der Immobilie
ohne-makler.net - Immobilien selbst vermarkten
Humboldtstr. 25 A, 21509 Glinde
Online-ID: 2nhed54
Referenznummer: 332897
Finde Angebote wie dieses
Hier geht es zu unserem Impressum, den Allgemeinen Geschäftsbedingungen, den Hinweisen zum Datenschutz und nutzungsbasierter Online-Werbung.