
Lamp Immobilien
Frau Eugenia Lamp
017 ···
Nr. anzeigenPreise & Kosten
Provision für Käufer
provisionsfrei
Das Haus
Kategorie
Doppelhaushälfte
Baujahr
2026
Bezug
01.03.2026
Energie & Heizung
Warum sehe ich diese Anzeige? – Du siehst diese Anzeige basierend auf Ihrer Navigation auf unserer Website und den Suchkriterien, die du verwendet hast.
Energieausweis: für diesen Gebäudetyp nicht notwendig
Details
Objektbeschreibung
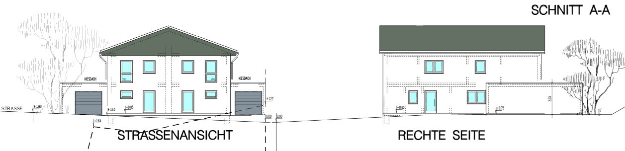
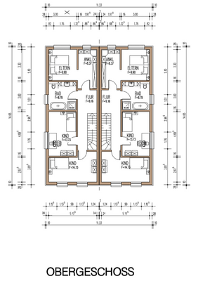
1- 2 Familien Haus in Birkenfeld
Objektbeschreibung
Zum Verkauf steht ein neu geplantes Zweifamilienhaus mit großzügigem und durchdachtem Grundriss. Die Immobilie eignet sich ideal sowohl zur Eigennutzung für zwei Familien als auch als attraktive Kapitalanlage.
Jede der beiden Wohneinheiten verfügt über einen...
Anbieter der Immobilie
Lamp Immobilien
Im oberen Forst 9, 55776 Frauenberg
Online-ID: 2nhkh58
Finde Angebote wie dieses
Hier geht es zu unserem Impressum, den Allgemeinen Geschäftsbedingungen, den Hinweisen zum Datenschutz und nutzungsbasierter Online-Werbung.