

KHC Bauträger GmbH
Frau Janet Schrepel
037 ···
Nr. anzeigenPreise & Kosten
Provision für Käufer
provisionsfrei
Lage
Das Grundstück befindet sich im Zwickauer Stadtteil Cainsdorf und bietet viel Platz für ihr zukünftiges Bauvorhaben. Es ist sehr ruhig direkt am Feld gelegen mit einem freien Blick Richtung Süden.
Der gezeigte Preis versteht sich inklusive Grundstück und exklusive der Baunebenkosten.
Das Haus
Kategorie
Einfamilienhaus
Baujahr
2026
Energie & Heizung
Warum sehe ich diese Anzeige? – Du siehst diese Anzeige basierend auf Ihrer Navigation auf unserer Website und den Suchkriterien, die du verwendet hast.
Energieausweistyp
Bedarfsausweis
Gebäudetyp
Wohngebäude
Baujahr laut Energieausweis
2026
Gültigkeit
seit 04.01.2016
Effizienzklasse
A+
Weitere Energiedaten
Heizungsart
Zentralheizung
Details
Objektbeschreibung
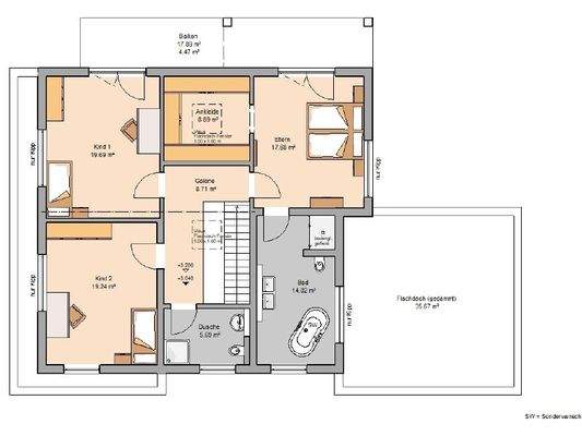
Das Bauhaus Anteo ist ein modernes Kern-Haus mit 214 m². Hier hat eine Familie genügend Platz um sich Wohlzufühlen.
Das Wohn- und Esszimmer auf 55 m² wird zum Lebensmittelpunkt des Hauses, denn direkt angeschlossen ist die offene Küche mit Speisekammer. Große Fensterelemente im Wohnbereich bieten eine grenzenlose...
Ausstattung
5 Zimmer, offene Küche, Diele, 2 x Dusche, Galerie, Bad, Ankleide, Hauswirtschaftsraum, Speisekammer, Balkon, Doppelgarage
Das gezeigte Traumhaus im Überblick:
+ Massivhaus als Ausbauhaus im Sinne der Bau- und Ausstattungsbeschreibung "Paulo"
+ Gebäudehülle ist für Effizienzhaus 40 optimiert
+ Inklusive...
Weitere Informationen
Sonstiges
Kern-Haus
Kern-Haus baut individuelle und massive Architektenhäuser zu einem attraktiven Preis-Leistungs-Verhältnis - und das bereits mit einer Erfahrung seit 1980.
Maximale Sicherheit bei Kern-Haus:
+ 10 Jahre Gewährleistung auf die wesentlichen Bauleistungen
+ Bis zu 18 Monate...
Anbieter der Immobilie
KHC Bauträger GmbH
Albert Einstein Str. 4, 09212 Limbach-Oberfrohna

Online-ID: 2nhlv5b
Referenznummer: KH 40_02
Finde Angebote wie dieses
Hier geht es zu unserem Impressum, den Allgemeinen Geschäftsbedingungen, den Hinweisen zum Datenschutz und nutzungsbasierter Online-Werbung.