
Armin Becker Immobilien
Herr Armin Becker
004 ···
Nr. anzeigenPreise & Kosten
Provision für Käufer
3,57 % inkl. MwSt
Lage
Emmerich am Rhein ist eine Hansestadt am rechten unteren Niederrhein im Nordwesten des Bundeslandes Nordrhein-Westfalen. Als mittlere kreisangehörige Stadt gehört sie zum Kreis Kleve im Regierungsbezirk Düsseldorf. Die Gewerbeimmobilie liegt am Stadtrand von Emmerich und ist von der Infrastruktur ca. 2,8 km zum nächsten...
Büro-/Praxisfläche
Kategorie
Bürokomplex
Baujahr
1987
Details
Objektbeschreibung
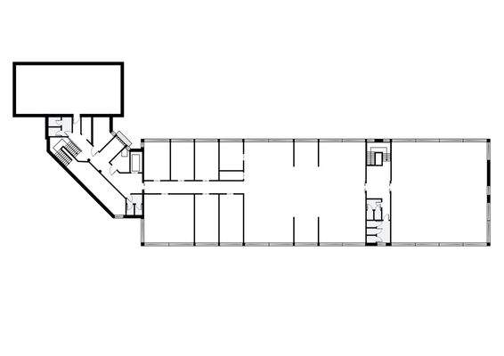
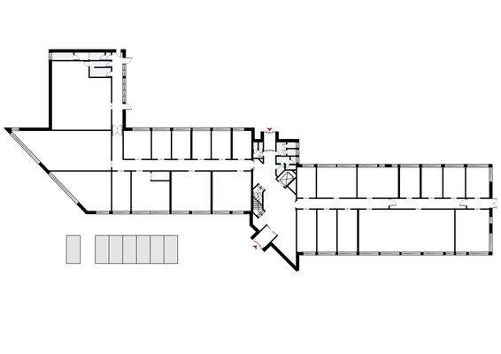
Zum Verkauf steht eine große Büro-Gewerbeimmobilie auf einem Grundstück von insgesamt 14.615 qm mit insgesamt 140 Stellplätzen und einer Gebäudefläche von 5.823 qm. Das Gebäude wurde im Jahr 1987 erbaut und im Jahr 1993 erweitert.
Im Gebäudes befinden sich Büroflächen von insgesamt 3.174 qm. Es gibt eine hohe...
Ausstattung
Baujahr: 1987
Netto Kaltmiete p.a.:
- Bürofläche (vermietet) = ca. 163.866 €
- Lagerfläche (vermietet) = ca. 37.072 €
- Bürofläche (noch zu vermieten) = ca. 82.620 €
- Lagerfläche (noch zu vermieten) = ca. 13.086 €
Rendite:
- Gesamt Mieteinnahme mit Lehrstand = ca. 200.938,00 €
- daraus ergibt...
Preisinformation
Zweimillionenneunhundertfünfundneunzigtausend, 140 Stellplätze
Weitere Informationen
Sonstiges
Verpassen Sie keine Immobilie mehr!
Unser komplettes Immobilienangebot finden Sie immer zuerst auf www.remax.de
Gerne helfen wir Ihnen auch beim Verkauf oder der Vermietung Ihrer Immobilie.
Karriere bei REMAX?
Infos: www.remax.de/karriere
Stichworte
Nutzfläche: 1.242,00 m², Gesamtfläche...
Anbieter der Immobilie
Armin Becker Immobilien
In den Seisen 29, 46446 Emmerich am Rhein
Online-ID: 2nj2657
Referenznummer: 1051-74-GR87AB
Finde Angebote wie dieses
Hier geht es zu unserem Impressum, den Allgemeinen Geschäftsbedingungen, den Hinweisen zum Datenschutz und nutzungsbasierter Online-Werbung.