
Grethe Schellmann Immobilienvermarktungs GmbH
Frau Laura Mütsch
004 ···
Nr. anzeigenPreise & Kosten
Provision für Käufer
Bitte beachte, das Angebot kann bei Vertragsabschluss die Zahlung einer Provision beinhalten. Weitere Informationen erhältst Du vom Anbieter.
Lage
Wertheim, die größte Stadt im Main-Tauber-Kreis, liegt malerisch am Zusammenfluss von Main und Tauber und ist Teil der wirtschaftsstarken Region Heilbronn-Franken. Als moderne große Kreisstadt verbindet Wertheim eine hohe Lebensqualität mit stabilen wirtschaftlichen Perspektiven und einer sehr gut ausgebauten Infrastruktur...
Die Wohnung
Wohnungslage
Erdgeschoss
Wohnanlage
Energie & Heizung
Warum sehe ich diese Anzeige? – Du siehst diese Anzeige basierend auf Ihrer Navigation auf unserer Website und den Suchkriterien, die du verwendet hast.
Energieausweistyp
Bedarfsausweis
Gebäudetyp
Wohngebäude
Baujahr laut Energieausweis
2026
Wesentliche Energieträger
LUFTWP
Gültigkeit
bis 22.02.2036
Effizienzklasse
A+
Endenergiebedarf
35,40 kWh/(m²·a)
Weitere Energiedaten
Heizungsart
Luft-/Wasser-Wärmepumpe
Details
Objektbeschreibung
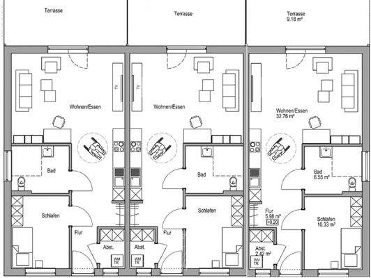
Im beliebten Wertheimer Stadtteil Reinhardshof entsteht mit "Reinhardshof Panorama" ein modernes Neubauensemble mit insgesamt 18 Wohnungen, das zeitgemäße Architektur, energieeffiziente Bauweise und hohen Wohnkomfort vereint. Die angebotene Erdgeschosswohnung mit einer Wohnfläche von ca. 67 m² überzeugt durch eine durchdachte...
Ausstattung
Energieeffiziente Bauweise
. Offene & helle Wohnräume, durchdachte Raumplanung
. Neubau nach KfW-55-Standard
. Nachhaltige/zukunftssichere Haustechnik
. Hochwertige Massivbauweise
. 3-fach Isolierverglasung
. Elektrische Rollläden
. Hochwertige Bodenbeläge: Vinyl und Fliesen (frei wählbar)
...
Preisinformation
2 Stellplätze, Miete je: 10.000,00 EUR
Weitere Informationen
Sonstiges
Fordern Sie weitere Unterlagen an oder informieren Sie sich in einem persönlichen Beratungsgespräch über dieses Neubauprojekt.
Stichworte
Fahrradraum, Anzahl der Schlafzimmer: 1, Anzahl der Badezimmer: 1, Anzahl Terrassen: 1, 1 Etagen
Anbieter der Immobilie
Online-ID: 2nj2e59
Referenznummer: 1550
Finde Angebote wie dieses
Hier geht es zu unserem Impressum, den Allgemeinen Geschäftsbedingungen, den Hinweisen zum Datenschutz und nutzungsbasierter Online-Werbung.