
Immobilien- & Hausverwaltung Lessmann
Sophia Schönbrunn
091 ···
Nr. anzeigenPreise & Kosten
Kaution
2115 €
Warum sehe ich diese Anzeige? – Du siehst diese Anzeige basierend auf Ihrer Navigation auf unserer Website und den Suchkriterien, die du verwendet hast.
Lage
Der La Garde Komplex befindet sich in einer attraktiven und ruhigen Wohngegend in Bamberg, einer Stadt, die für ihre historische Altstadt und ihr reiches kulturelles Erbe bekannt ist. Die Lorenz-Krapp-Straße liegt in unmittelbarer Nähe zu zahlreichen Annehmlichkeiten, die das tägliche Leben erleichtern.
In der Umgebung...
Die Wohnung
Wohnungslage
1. Geschoss
Bezug
sofort
Wohnanlage
Energie & Heizung
Warum sehe ich diese Anzeige? – Du siehst diese Anzeige basierend auf Ihrer Navigation auf unserer Website und den Suchkriterien, die du verwendet hast.
Weitere Energiedaten
Energieträger
Fernwärme
Heizungsart
Fußbodenheizung
Details
Objektbeschreibung
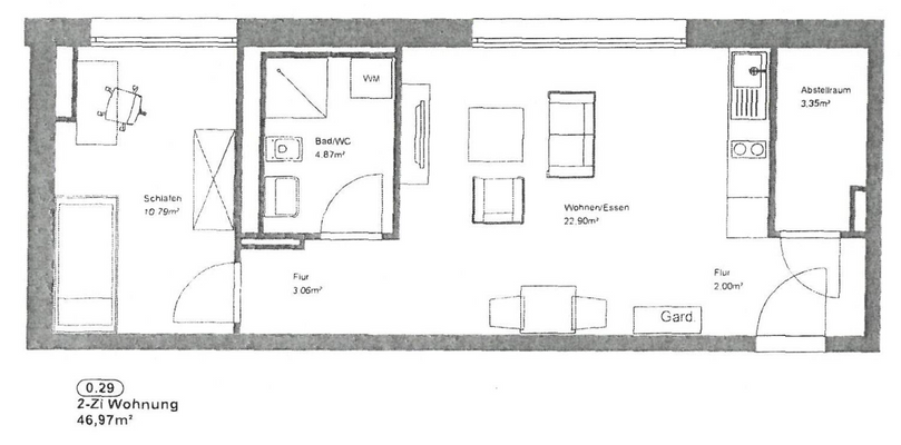
Diese gemütliche 2-Zimmer-Wohnung befindet sich im 1.OG eines gepflegten Mehrfamilienhauses in Bamberg und bietet eine Wohnfläche von 46,97 m². Die Wohnung verfügt über zwei helle, gut geschnittene Räume, die ideal für Singles oder Paare geeignet sind.
Ein besonderes Highlight der Wohnung ist die offene Gestaltung des...
Ausstattung
Heizkosten und Wasser sind nicht in den Nebenkosten inbegriffen, hier muss eigenständig ein Vertrag durch die Mieter mit den Stadtwerken geschlossen werden.
. Wohnbereich mit offener Küche
. Hochwertige Sanitärausstattung: Das Badezimmer bietet moderne, langlebige und stilvolle Sanitärobjekte.
...
Preisinformation
1 Parkhausstellplatz, Miete: 70,00 EUR
Weitere Informationen
Sonstiges
Haben Sie Interesse an unserer hochwertigen Wohnung auf dem La Garde Gelände in Bamberg?
Kontaktieren Sie uns gerne unter kontakt@immo-lessmann.de um weitere Informationen zu erhalten.
Wir freuen uns auf Ihre Nachricht und stehen Ihnen bei Fragen gerne zur Verfügung!
Immobilien- und...
Anbieter der Immobilie
Online-ID: 2nj3557
Referenznummer: IHV-C1-WHG29-JP
Finde Angebote wie dieses
Hier geht es zu unserem Impressum, den Allgemeinen Geschäftsbedingungen, den Hinweisen zum Datenschutz und nutzungsbasierter Online-Werbung.