
ohne-makler.net - Immobilien selbst vermarkten
Herr/Frau ohne-makler.net Kundenservice
040 ···
Nr. anzeigenPreise & Kosten
Provision für Käufer
provisionsfrei
Lage
Die Immobilie befindet sich in der Breslauerstraße 18 in 89231 Neu-Ulm, einer ruhigen und gut angebundenen Wohnlage mit gewachsener Infrastruktur. Einkaufsmöglichkeiten, Schulen, Kindergärten, Ärzte sowie weitere Einrichtungen des täglichen Bedarfs sind in kurzer Entfernung erreichbar.
Eine sehr gute Anbindung an den...
Die Wohnung
Bezug
sofort
Wohnanlage
Energie & Heizung
Warum sehe ich diese Anzeige? – Du siehst diese Anzeige basierend auf Ihrer Navigation auf unserer Website und den Suchkriterien, die du verwendet hast.
Energieausweistyp
Verbrauchsausweis
Gebäudetyp
Wohngebäude
Effizienzklasse
D
Endenergieverbrauch
117,00 kWh/(m²·a)
Weitere Energiedaten
Energieträger
Fernwärme
Heizungsart
Zentralheizung
Details
Objektbeschreibung
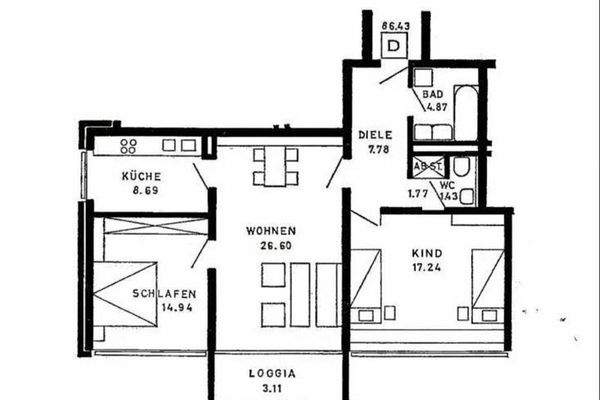
Diese attraktive 3-Zimmer-Etagenwohnung befindet sich im 5. Obergeschoss eines gepflegten Mehrfamilienhauses in Neu-Ulm Ludwigsfeld und überzeugt durch ihre helle Wohnatmosphäre sowie einen durchdachten Grundriss.
Dank der Süd-West-Ausrichtung und der großzügigen Fensterflächen werden alle Räume mit viel Tageslicht...
Ausstattung
Balkon, Keller, Fahrstuhl, Gäste-WC
Bemerkungen:
3-Zimmer-Wohnung mit ca. 86,4 m² Wohnfläche
5. Obergeschoss in einem Mehrfamilienhaus mit Personenaufzug
Süd-West-Ausrichtung
- Balkon mit Weitblick
- Großzügige Fensterflächen für helle Räume
- Zwei Schlafzimmer (optional 4 Zimmer möglich)
-...
Preisinformation
1 Tiefgaragenstellplatz, Kaufpreis: 15.000,00 EUR
Weitere Informationen
Sonstiges
Heizungsart: Zentralheizung
Energieträger: Fernwärme
Die Wohnung ist kurzfristig bezugsfrei.
Das monatliche Hausgeld beträgt derzeit ca. 450 €.
Die Wohnung wird ohne Möbel übergeben, dient nur zu Vorstellung da.
Makleranfragen nicht erwünscht. Nach § 7 UWG sind unaufgeforderte...
Anbieter der Immobilie
ohne-makler.net - Immobilien selbst vermarkten
Humboldtstr. 25 A, 21509 Glinde
Online-ID: 2njad52
Referenznummer: 419827
Finde Angebote wie dieses
Hier geht es zu unserem Impressum, den Allgemeinen Geschäftsbedingungen, den Hinweisen zum Datenschutz und nutzungsbasierter Online-Werbung.