

Stark Bau GmbH & Co. KG
Herr Michael Jacob
045 ···
Nr. anzeigenPreise & Kosten
Provision für Käufer
provisionsfrei
Lage
Die stetig wachsende Gemeinde Trittau mit seinen ca. 9000 Einwohnern liegt im schönen Kreis Stormarn in Schleswig-Holstein. Gute 30 Kilometer entfernt liegt die Hamburger Innenstadt. Andere Ziele sind ebenfalls schnell erreicht, durch die Nähe zur B404, der A24 oder der A1.
Trittau zeichnet sich zusätzlich durch eine...
Die Wohnung
Bezug
Ende 2026 / Anfang 2027
Wohnanlage
Energie & Heizung
Warum sehe ich diese Anzeige? – Du siehst diese Anzeige basierend auf Ihrer Navigation auf unserer Website und den Suchkriterien, die du verwendet hast.
Weitere Energiedaten
Heizungsart
Fußbodenheizung, Luft-/Wasser-Wärmepumpe
Details
Objektbeschreibung
Modernes und innovatives Wohnen in einer Stadt mit guter Infrastruktur, viel Natur und ca. 4 Gehminuten vom Zentrum entfernt.
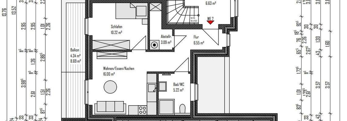
Die hier angebotene barrierefreie Etagenwohnung hat ca. 45,42 m² Wohnfläche verteilt auf
2 Zimmer und ein Balkon in Süd Ost Ausrichtung.
unterteilt sich wie folgt.
Eingangsbereich...
Ausstattung
Zu den Ausstattungsmerkmalen zählen:
+ Etagenwohnung mit 45,42 m² verteilt auf 2 Zimmer
+ in solider und massiver Bauweise
+ 1 PKW Außenstellplatz
+ innovative Luft- Wasser-Wärmepumpe
+ Passiv Lüftung im gesamten Objekt
+ Internet vorhanden, Glasfaser
+ Fußbodenheizung im gesamten Objekt
+ offene...
Preisinformation
1 Stellplatz
Weitere Informationen
Sonstiges
Die enthaltenen Daten beruhen auf den uns vom Eigentümer zur Verfügung gestellten Unterlagen.
Eine Gewähr für die Vollständigkeit und Richtigkeit der Angaben wird nicht übernommen.
Das Angebot ist freibleibend.
Für eine Terminabstimmung senden Sie uns bitte eine Anfrage (Anbieter kontaktieren)...
Anbieter der Immobilie
Stark Bau GmbH & Co. KG
Stubbendorfer Ring 15, 23858 Wesenberg

Online-ID: 2nkdf5d
Referenznummer: WK 12 - 07
Finde Angebote wie dieses
Hier geht es zu unserem Impressum, den Allgemeinen Geschäftsbedingungen, den Hinweisen zum Datenschutz und nutzungsbasierter Online-Werbung.