Sparkassen Immobilien GmbH - Ein Unternehmen der Sparkasse Aachen -

Herr Tobias Hermanns

Kontaktiere den Anbieter schriftlich, es ist keine Telefonnummer hinterlegt.

Großes Baugrundstück zur Neuplanung

€ 398.000
Kaufpreis
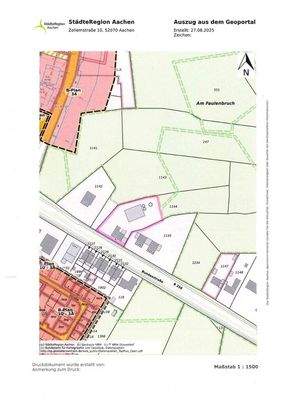
2 530 m²
Grundstücksfl. ca.

Der Anbieter dieses Objekts hat gegenüber der AVIV Germany GmbH als Betreiber dieses Online-Marktplatzes erklärt, nicht als Unternehmer im Sinne des § 1 KSchG zu handeln. Die im Verbraucherschutzrecht der Union verankerten Verbraucherrechte (insbesondere Informationspflichten und Rücktritts- bzw. Widerrufsrechte) finden auf den Vertrag zwischen dem Anbieter des Objekts und Ihnen (dem Interessenten) keine Anwendung.

Gewerblicher Anbieter

Der Anbieter dieses Objekts hat gegenüber der AVIV Germany GmbH als Betreiber dieses Online-Marktplatzes erklärt, als Unternehmer im Sinne des § 1 KSchG zu handeln.

AdresseStraße nicht freigegeben
52159 Roetgen 
Auf Karte ansehen

Preise & Kosten

Kaufpreis € 398.000 Preis/m² € 157,31

Provision für Käufer

3,57 % inkl. gesetzl. MwSt. inkl. MwSt.

Lage

Das Grundstück befindet sich in zentraler Lage in der Nähe des Roetgener Zentrums.

Der Standort zeichnet sich vor allem durch seine Nähe zur Natur aus. Viele Freizeitaktivitäten wie z.B. ausgedehnte Wanderungen, Spaziergänge oder Mountainbiken sind problemlos möglich.

Infrastrukturelle Dienstleistungen finden...

Mehr anzeigen

Die Immobilie

info

Zu diesem Angebot wurden vom Anbieter keine weiteren Daten hinterlegt. Für weitere Informationen bitte den Anbieter kontaktieren.

Nach Informationen fragen

Details

Objektbeschreibung

Kurzbeschreibung
...
weitere Informationen finden Sie auf unserer Webseite www.s-immo-aachen.de.

Objekt
Ihr neues Zuhause in Roetgen erwartet Sie auf einem großen Grundstück von ca. 2.530 m².

Dieses attraktive und voll erschlossene Grundstück befindet sich in zentraler Wohnlage von Roetgen und bietet...

Mehr anzeigen

Ausstattung

- ebenes Baugrundstück
- Grundstücksausrichtung in Nord bzw. Nord-Ost
- verschiedene Bebauungsmöglichkeiten möglich
- Bebauung nach B-Plan Nr. 32

Weitere Informationen

Sonstiges
Sie sind bereits Besitzer/in einer Immobilie und möchten den aktuellen Marktwert Ihres Objektes erfahren?

Die S-Immo hat seit Anfang der 1990er Jahre weit über 10.000 Immobilien erfolgreich vermittelt. Mit dieser Expertise und langjährig erfahrenen Mitarbeiterinnen und Mitarbeitern helfen wir Ihnen gerne...

Mehr anzeigen

Anbieter der Immobilie

Partner

Sparkassen Immobilien GmbH - Ein Unternehmen der Sparkasse Aachen -

im Durchschnitt  4,20  Sterne
(bei 24 Bewertungen)

Monnetstraße 24, 52146 Würselen

Geschäftszeiten
user

Herr Tobias Hermanns

Dein Ansprechpartner

Kontaktiere den Anbieter schriftlich, es ist keine Telefonnummer hinterlegt.

Anbieter-Profil Anbieter-Impressum

Online-ID: 2nknk52

Referenznummer: 25SIAC3743

Finde Angebote wie dieses

imageimageimage

Hier geht es zu unserem Impressum, den Allgemeinen Geschäftsbedingungen, den Hinweisen zum Datenschutz und nutzungsbasierter Online-Werbung.