
Smart Property Management GmbH
Herr Oliver Schlecht
0 4 ···
Nr. anzeigenPreise & Kosten
Provision für Käufer
3,57 inkl. MWSt.
Die Courtage beträgt 7,14 % vom Gesamtkaufpreis inkl. USt. und ist vom Käufer sowie vom Verkäufer bei Vertragsabschluß zu gleichen Teilen zu zahlen.
Lage
Diese schöne Wohnung befindet sich in Mölln, einer idyllischen Stadt im Herzen Schleswig-Holsteins. Die Wohnung liegt in einer ruhigen Wohngegend mit optimalen Einkaufsmöglichkeiten und ist nur wenige Gehminuten vom Zentrum entfernt. Der Fußweg zur nächsten Bushaltestelle beträgt nur 3 Minuten. Die Wohnung ist ideal für alle...
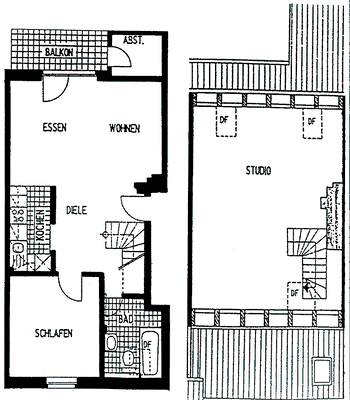
Die Wohnung
Kategorie
Maisonette
Wohnungslage
1. Geschoss
Derzeitige Nutzung
vermietet
Wohnanlage
Energie & Heizung
Warum sehe ich diese Anzeige? – Du siehst diese Anzeige basierend auf Ihrer Navigation auf unserer Website und den Suchkriterien, die du verwendet hast.
Energieausweistyp
Verbrauchsausweis
Gebäudetyp
Wohngebäude
Wesentliche Energieträger
Gas
Effizienzklasse
E
Endenergieverbrauch
137,00 kWh/(m²·a)
Weitere Energiedaten
Energieträger
Gas
Heizungsart
Zentralheizung
Details
Objektbeschreibung
Entdecken Sie diese interessante Maisonette-Wohnung, ideal für Kapitalanleger. Mit 2 Zimmern auf der unteren Ebene und einem großen Dachstudio bietet sie großzügigen und komfortablen Wohnraum auf ca. 86 m².
Vor dem Wohnzimmer befindet sich ein schöner, nach Westen ausgerichteter Balkon mit angeschlossenem Abstellraum...
Ausstattung
- Einbauküche
- Wannenbad
- Balkon
- PKW- Aussenstellplatz
- Abstellraum auf dem Balkon
Preisinformation
1 Stellplatz
Weitere Informationen
Sonstiges
Die veröffentlichten Bilder zeigen die leere Wohnung vor Beginn des Mietverhältnisses.
Der angegebene Kaufpreis versteht sich als Festpreis.
Besichtigungstermine können nur nach Absprache mit uns und dem Mieter durchgeführt werden.
Die Heizungsanlage wurde in 2019 erneuert. Ein neuer Energieausweis wurde...
Anbieter der Immobilie
Smart Property Management GmbH
Vogtlandstraße 8, 07549 Gera
Online-ID: 2nksg5a
Referenznummer: 42
Finde Angebote wie dieses
Hier geht es zu unserem Impressum, den Allgemeinen Geschäftsbedingungen, den Hinweisen zum Datenschutz und nutzungsbasierter Online-Werbung.