CARDO Immobilienvermittlung GmbH

Herr/Frau Gernot Schmelz

Dachgeschosswohnung nähe Donaukanal

€ 1.929,36
Gesamtmiete inkl. BK
97,11 m²
Wohnfläche ca.
2
Zimmer

Der Anbieter dieses Objekts hat gegenüber der AVIV Germany GmbH als Betreiber dieses Online-Marktplatzes erklärt, nicht als Unternehmer im Sinne des § 1 KSchG zu handeln. Die im Verbraucherschutzrecht der Union verankerten Verbraucherrechte (insbesondere Informationspflichten und Rücktritts- bzw. Widerrufsrechte) finden auf den Vertrag zwischen dem Anbieter des Objekts und Ihnen (dem Interessenten) keine Anwendung.

Gewerblicher Anbieter

Der Anbieter dieses Objekts hat gegenüber der AVIV Germany GmbH als Betreiber dieses Online-Marktplatzes erklärt, als Unternehmer im Sinne des § 1 KSchG zu handeln.

AdresseStraße nicht freigegeben
1200 Wien 
(Brigittenau)
Auf Karte ansehen

Preise & Kosten

Gesamtmiete

inkl. Betriebskosten

€ 1.929,36
Nettokaltmiete € 1.400 Betriebskosten € 285,75 Preis/m² € 14,42

Kaution

5.800,00 €

Provision für Mieter

Gemäß Erstauftraggeberprinzip bezahlt der Abgeber die Provision.

Lage

Donaukanal, Friedensbrücke

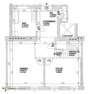
Die Wohnung

Wohnungslage

5. Geschoss (Dachgeschoss)

  • Bad mit Wanne
  • Terrasse
  • Einbauküche
  • Böden: Fliesenboden, Parkett

Wohnanlage

  • Zustand: Altbau (bis 1945)
  • Personenaufzug

Energie & Heizung

Heizwärmebedarf (HWB)

B

75,30 kWh/(m²·a)

Gesamtenergieeffizienz (fGEE)

C

1,46

Weitere Energiedaten

Energieträger

Gas

Heizungsart

Etagenheizung

Details

Objektbeschreibung

Diese exklusive Dachgeschoss-Maissonette mit einer großzügigen Dachterrasse befindet sich in einem Jahrhundertwendegebäude nahe dem Donaukanal

Die Wohnung erstreckt sich über 2 Ebenen. Die untere Ebene befindet sich im 4. Obergeschoss des Gebäudes und liegt damit noch im Altbauteil. Über den geräumigen Vorraum sind...

Mehr anzeigen

Preisinformation

Nettokaltmiete: 1.400,00 EUR

Weitere Informationen

Stichworte
West-Balkon/Terrasse, Anzahl der Badezimmer: 1, Anzahl der separaten WCs: 1, Anzahl Terrassen: 1, Balkon-Terrassen-Fläche: 47,00 m², Bundesland: Wien, 6 Etagen, modernisiert

Anbieter der Immobilie

CARDO Immobilienvermittlung GmbH

im Durchschnitt  5,00  Sterne
(bei 1 Bewertungen)

Webgasse 24,1 a, 1060 WIEN

user

Herr/Frau Gernot Schmelz

Dein Ansprechpartner

Anbieter-Website Anbieter-Impressum

Online-ID: 2nlpn52

Referenznummer: OBGC202510311429386627becc3bdf5

Finde Angebote wie dieses

imageimageimage

Hier geht es zu unserem Impressum, den Allgemeinen Geschäftsbedingungen, den Hinweisen zum Datenschutz und nutzungsbasierter Online-Werbung.