
Allkauf Haus GmbH
Herr Roland Dreyer
034 ···
Nr. anzeigenPreise & Kosten
Provision für Käufer
provisionsfrei
Lage
Dieses traumhafte Zweifamilienhaus befindet sich in einem ruhigen Wohngebiet in Potsdam, das durch eine hervorragende Infrastruktur besticht. Schulen, Kindergärten und Einkaufsmöglichkeiten befinden sich in unmittelbarer Nähe und sind bequem erreichbar. Zudem bieten zahlreiche Freizeitmöglichkeiten in der Umgebung, wie Parks...
Das Haus
Kategorie
Mehrfamilienhaus
Baujahr
2026
Bezug
2026
Energie & Heizung
Warum sehe ich diese Anzeige? – Du siehst diese Anzeige basierend auf Ihrer Navigation auf unserer Website und den Suchkriterien, die du verwendet hast.
Weitere Energiedaten
Haustyp
Niedrigenergiehaus
Heizungsart
Fußbodenheizung, Luft-/Wasser-Wärmepumpe
Details
Objektbeschreibung
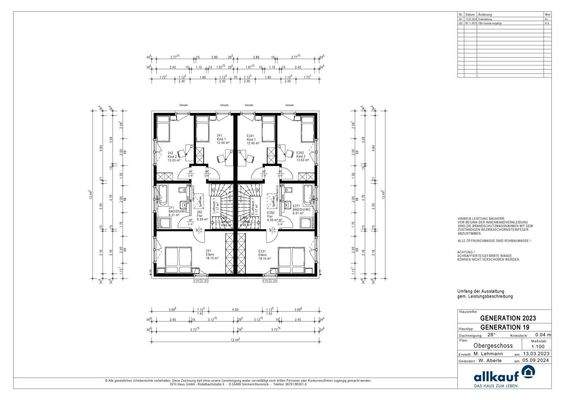
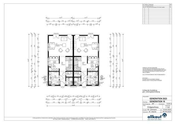
Willkommen in Ihrem neuen Zweifamilienhaus, das ganz nach Ihren individuellen Vorstellungen und Wünschen gestaltet wird. Mit einer großzügigen Wohnfläche von 254,88 m² und insgesamt 8 Zimmern, darunter 6 Schlafzimmer und 2 Badezimmer sowie ein zusätzliches Gäste-WC, bietet dieses Haus ausreichend Platz für die ganze Familie...
Ausstattung
Das Zweifamilienhaus besticht durch eine gehobene Ausstattung, die keine Wünsche offenlässt. Die umweltfreundliche Wärmepumpe sorgt für eine effiziente und kostensparende Beheizung Ihrer Wohnräume. Zusätzlich profitieren Sie von einer Fußbodenheizung, die für ein angenehmes Wohnklima sorgt. Zu den Highlights gehören 3-fach...
Weitere Informationen
Sonstiges
Gut zu wissen:
Baunebenkosten wie Grunderwerbsteuer, Notar, Hausanschlüsse, behördliche Gebühren oder Finanzierungskosten sind im Gesamtpreis nicht enthalten. Abbildungen können Sonderausstattungen zeigen. Änderungen, Irrtümer und Zwischenverkauf vorbehalten.
Stichworte
Anzahl der Schlafzimmer: 6...
Anbieter der Immobilie
Allkauf Haus GmbH
Gletschersteinstr. 53, 04299 Leipzig
Online-ID: 2nlwe5b
Referenznummer: ROD-KW-128489
Finde Angebote wie dieses
Hier geht es zu unserem Impressum, den Allgemeinen Geschäftsbedingungen, den Hinweisen zum Datenschutz und nutzungsbasierter Online-Werbung.