

DI Real Estate GmbH
Herr Marcel Mandau
+49 ···
Nr. anzeigenPreise & Kosten
Provision für Käufer
0,00 % inkl. MwSt.
Lage
SICKENHAUSEN - EINE INFRASTRUKTUR DIE ÜBERZEUGT!
Sickenhausen ist einer von insgesamt zwölf Stadtteilen der großen Kreisstadt Reutlingen. Die Stadt liegt rund fünf Kilometer von der Reutlinger Innenstadt entfernt. Am nordwestlichen Stadtrand von Reutlingen gelegen punktet Sicken- hausen vor allem bei der...
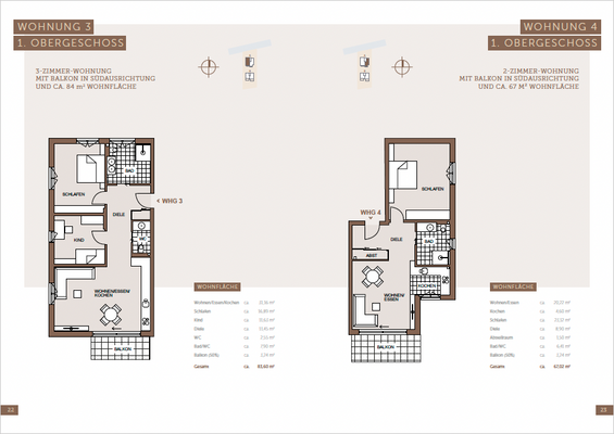
Die Wohnung
Wohnungslage
1. Geschoss
Bezug
Ende 2026
Wohnanlage
Details
Objektbeschreibung
ACHT MODERNE WOHNEINHEITEN VERTEILT AUF ZWEI GEBÄUDE
Die beiden Häuser sind von der Friedrichstraße aus zugänglich. Zur Straße gerichtet entsteht das vordere Mehrfamilienhaus (A) mit insgesamt sechs Wohneinheiten. Die beiden Wohnungen im Dachgeschoss sind als Maisonette-Wohnung konzipiert.
Das moderne Doppelhaus...
Ausstattung
° nach Süden ausgerichteter Balkon
° bodentiefe Fenster sorgen für viel Licht
° hochwertige und moderne Ausstattung
° Sanitärgegenstände von namhaften Herstellern
° durchdachte Grundrissaufteilung
° hocheffiziente Wärmepumpen
° KfW 55 EE Standard
° 1 Außenstellplatz
Weitere Informationen
Sonstiges
F11-Reutlingen - http://f11-reutlingen.de
Stichworte
Stellplatz vorhanden, Anzahl der Schlafzimmer: 2, Anzahl der Badezimmer: 1, Anzahl der separaten WCs: 1, Anzahl Balkone: 1, 3 Etagen, Lage im Wohngebiet
Sonstiges/Wohnen: seniorengerechtes Wohnen
Anbieter der Immobilie
DI Real Estate GmbH
Geißeichstraße 5, 70197 Stuttgart

Online-ID: 2nm4554
Referenznummer: 123340494#Y03DZ
Finde Angebote wie dieses
Weitere Immobilien
Hier geht es zu unserem Impressum, den Allgemeinen Geschäftsbedingungen, den Hinweisen zum Datenschutz und nutzungsbasierter Online-Werbung.