
FECHNER IMMOBILIEN
Herr Daniel Fechner
004 ···
Nr. anzeigenPreise & Kosten
Provision für Käufer
provisionsfrei
Lage
Eine der besten Lagen in Gaimersheim - nur selten sind hier Wohnungen zum Kauf im Angebot.
Der Markt Gaimersheim liegt nordwestlich von Ingolstadt und erfreut sich großer Beliebtheit. Der Standort überzeugt durch eine sehr gute Infrastruktur vor Ort (Banken, Bäckereien, Supermärkte, Metzger, Arzt) und die...
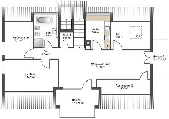
Die Wohnung
Wohnungslage
Dachgeschoss
Bezug
sofort
Wohnanlage
Energie & Heizung
Warum sehe ich diese Anzeige? – Du siehst diese Anzeige basierend auf Ihrer Navigation auf unserer Website und den Suchkriterien, die du verwendet hast.
Energieausweistyp
Verbrauchsausweis
Gebäudetyp
Wohngebäude
Baujahr laut Energieausweis
2003
Wesentliche Energieträger
GAS
Gültigkeit
bis 16.01.2035
Effizienzklasse
B
Endenergieverbrauch
69,30 kWh/(m²·a)
Weitere Energiedaten
Energieträger
Gas
Heizungsart
Zentralheizung
Details
Objektbeschreibung
+++ Provisionsfrei für Käufer +++
Verkauft wird eine kurzfristig verfügbare 4-Zimmer-Dachgeschosswohnung in bester Wohnlage von Gaimersheim!
+ Die Wohnung erstreckt sich über das gesamte Dachgeschoss.
+ Im Mehrfamilienhaus befinden sich insgesamt nur fünf Wohneinheiten.
+ Ein eigener Treppenaufgang steht...
Ausstattung
Gerne beschreiben wir Ihnen nachstehend die wichtigsten Details zur Innenausstattung:
+ In allen Wohn- und Schlafräumen ist ein Echtholz-Parkettbodenbelag verlegt. Ebenso im Abstellraum 1.
+ Die Küche, das Badezimmer, der Abstellraum 2 und die Balkone sind ansprechend gefliest.
+ Die neuwertige Einbauküche aus...
Preisinformation
1 Stellplatz
1 Garagenstellplatz
Weitere Informationen
Sonstiges
Es liegt ein Energieverbrauchsausweis vor.
Dieser ist gültig bis 16.1.2035.
Endenergieverbrauch beträgt 69.30 kwh/(m²*a).
Wesentlicher Energieträger der Heizung ist Gas.
Das Baujahr des Objekts lt. Energieausweis ist 2003.
Die Energieeffizienzklasse ist B.
Alle Angaben basieren auf...
Anbieter der Immobilie
Online-ID: 2nmjs52
Referenznummer: 5198
Finde Angebote wie dieses
Hier geht es zu unserem Impressum, den Allgemeinen Geschäftsbedingungen, den Hinweisen zum Datenschutz und nutzungsbasierter Online-Werbung.