
Bremenliving.de I Hanseatische Immobilien
Herr Jan Bischoff
+49 ···
Nr. anzeigenPreise & Kosten
Provision für Käufer
Käufercourtage 4,76 % (inkl. 19% Mwst) auf den Kaufpreis
Lage
Bremen-Oberneuland, und insbesondere die Oberneulander Landstraße, bietet eine sehr charmante, fast dörfliche Wohnlage, in einer der besten Wohngegenden Bremens. Die gehobene Wohnqualität zeichnet sich durch die umliegende Bebauung mit zum Teil stattlichen Villen, weitläufigen Parkanlagen, sowie ausreichenden...
Das Grundstück
Energie & Heizung
Warum sehe ich diese Anzeige? – Du siehst diese Anzeige basierend auf Ihrer Navigation auf unserer Website und den Suchkriterien, die du verwendet hast.
Energieausweis: für diesen Gebäudetyp nicht notwendig
Details
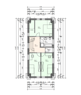
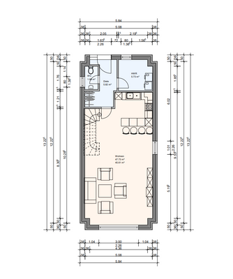
Objektbeschreibung
In rückwärtiger, sehr ruhiger Gartenlage befindet sich dieses Grundstück mit genehmigter Bauplanung (2011) für ein freistehendes Einfamilienhaus mit nachfolgenden Details:
* EG: Diele, WC, HWR, 47 m² Wohn/Esszimmer = 61 m²
* OG: 3 Zimmer, Heizung, Badezimmer = 59 m²
* DG: WC und 26,39 m² Dachstudio = 29 m²...
Weitere Informationen
Wir von Bremenliving.de | Hanseatische Immobilien sind seit Jahren auf die Vermittlung von hochwertigen Immobilien in guten Lagen spezialisiert. Gerne übernehmen wir auch für Sie den diskreten Verkauf Ihrer Immobilie zu Top-Konditionen. Service, Professionalität und Zuverlässigkeit zeichnen unsere Vorgehensweise aus. Wir...
Anbieter der Immobilie
Bremenliving.de I Hanseatische Immobilien
Bremen, 28213 Bremen
Online-ID: 2nmmw56
Finde Angebote wie dieses
Hier geht es zu unserem Impressum, den Allgemeinen Geschäftsbedingungen, den Hinweisen zum Datenschutz und nutzungsbasierter Online-Werbung.