
Rimo | Immobilien GmbH
Herr Daniel Ströhle
+43 ···
Nr. anzeigenPreise & Kosten
Provision für Käufer
Bitte beachte, das Angebot kann bei Vertragsabschluss die Zahlung einer Provision beinhalten. Weitere Informationen erhältst Du vom Anbieter.
Lage
Die Wohnanlage "Glattenstein" am Kalkofenweg in Götzis bietet eine hervorragende Lage für Familien und Pendler. In unmittelbarer Nähe finden Sie alles, was Sie für den Alltag benötigen: Arzt, Apotheke, Schule und Kindergarten sind bequem erreichbar. Supermärkte, Bäckereien und Banken sorgen für eine optimale Versorgung. Auch...
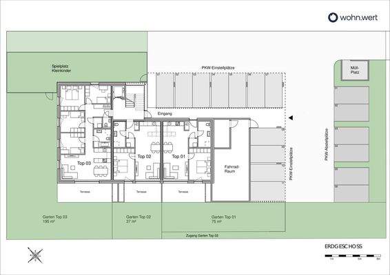
Die Wohnung
Wohnungslage
Erdgeschoss
Bezug
voraussichtlich Februar 2027
Wohnanlage
Energie & Heizung
Warum sehe ich diese Anzeige? – Du siehst diese Anzeige basierend auf Ihrer Navigation auf unserer Website und den Suchkriterien, die du verwendet hast.
Heizwärmebedarf (HWB)
31,16 kWh/(m²·a)
Gesamtenergieeffizienz (fGEE)
0,63
Weitere Energiedaten
Heizungsart
Fußbodenheizung, Luft-/Wasser-Wärmepumpe
Details
Objektbeschreibung
WOHNBAUFÖRDERUNG MÖGLICH!
In Götzis entsteht eine moderne Kleinwohnanlage mit insgesamt nur zehn Wohneinheiten - ideal für all jene, die ein hochwertiges, ruhiges und zugleich nachhaltiges Zuhause suchen.
Die gut geschnittenen 2- bis 5-Zimmer-Wohnungen überzeugen durch funktionale Grundrisse, eine...
Preisinformation
pro KFZ-Ausstellplatz = 20.000 EUR, 2 Stellplätze
Weitere Informationen
Stichworte
Stellplatz vorhanden, Süd-West-Balkon/Terrasse, Fahrradraum, Anzahl der Badezimmer: 1, Anzahl der separaten WCs: 2, Anzahl Terrassen: 1, Balkon-Terrassen-Fläche: 23,63 m², Gartenfläche: 109,00 m², Kellerfläche: 5,50 m², Bundesland: Vorarlberg, 3 Etagen, Wohnungsnr.: 3
Sonstiges/Wohnen: seniorengerechtes...
Dokumente
Anbieter der Immobilie
Online-ID: 2nmw256
Referenznummer: OBGC20251112144500113e935abaef4
Finde Angebote wie dieses
Günstige Immobilienfinanzierung einfach online berechnen
Persönliches Angebot berechnenWarum sehe ich diese Werbung? – Du siehst diese Werbung basierend auf Deiner Navigation auf unserer Website und der von Dir verwendeten Suchkriterien.
Diese Werbung wird bezahlt von durchblicker
Werbung melden
Hier geht es zu unserem Impressum, den Allgemeinen Geschäftsbedingungen, den Hinweisen zum Datenschutz und nutzungsbasierter Online-Werbung.