Version: 8.26.0Navigation überspringen
Mietkosten auf Anfrage
4 Zimmer  •  99,2 m²  •  252,9 m² Grundstück
Immowelt logo

Doppelhaushälfte zur Miete - Erstbezug
Mietkosten auf Anfrage
4 Zimmer  •  99,2 m²  •  252,9 m² Grundstück

Mietkauf I Bezugsfertig I ca. 123m² Garten I moderne Tischlerküche I Luftwärmepumpe I

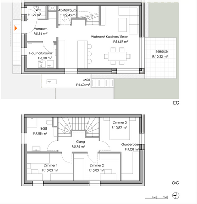
Das zweigeschossig bereits fertiggestellte Haus bietet auf ca. 100 m² Wohnfläche idealen Raum für die ganze Familie. Im Erdgeschoss befinden sich der offene Wohn-/Ess-/Kochbereich mit direktem Zugang zur Terrasse und in den großzügigen Garten, außerdem Windfang/Garderobe, Gäste-WC, Abstellraum und Technikraum. Im Obergeschoss liegen zwei Kinderzimmer, das Elternschlafzimmer mit angeschlossenem Schrankraum sowie das Badezimmer mit WC. Zum Haus gehören zwei KFZ-Stellplätze, die den Wohnkomfort perfekt ergänzen und bequemes Parken direkt am Grundstück ermöglichen. Großzügige 3-fach-verglaste Fensterflächen und eine Raumhöhe von 2,60 m schaffen ein helles, freies Wohngefühl in allen Räumen. Der südlich bzw. südwestlich ausgerichtete Garten - bei Haus 2 rund 123 m² - garantiert viele Sonnenstunden und lädt zum Verweilen ein. Dank der leicht versetzten Bauweise bleibt eure Privatsphäre im Garten gewahrt. Die Ziegelmassivbauweise mit effizienter Wärmedämmfassade sorgt zu jeder Jahreszeit für ein angenehmes Raumklima. Eine Wärmepumpe mit Fußbodenheizung ermöglicht wohltuende, energieeffiziente Wärme an kalten Tagen. Das Haus wird schlüsselfertig inklusive Küche samt Blaupunkt-Geräten übergeben Kurzinfo Ausstattung:
  • Moderne Tischlerküche inkl. Blaupunkt-Geräten (Backofen, Cerankochfeld, Geschirrspüler, Kühlschrank u. m.)
  • Großzügige Fensterfronten für viel Tageslicht
  • Ziegelmassivbauweise im Niedrigenergiestandard
  • Fußbodenheizung mit energieeffizienter Wärmepumpe
  • Zeitlos schöne Ausstattung: Parkett, moderne Sanitärräume, hochwertige Materialien
  • Perfekte Raumaufteilung für Familien
Mietkauf-Konditionen im Überblick
  • Anzahlung: Einmalig 75.000 € (entspricht 20 % des aktuellen Kaufpreises).
  • Deutlicher Vorteil: Im Gegenzug profitieren Sie über die gesamte Laufzeit von einer stark reduzierten Miete .
  • Anrechnung: Bei Kauf wird die Anzahlung zu 100 % auf den Kaufpreis angerechnet.
  • 50 % der bis dahin geleisteten Nettomiete in Höhe von EUR 900,-- pro Monat wird angerechnet
  • Die Höhe der Akontozahlung der BK und Rep. Rücklage beträgt derzeit brutto monatlich EUR 199,00
Wohnbauprojekt: 7 Zwerge ist ein modernes Wohnprojekt mit sieben kompakt geplanten, zweigeschossigen Häusern, die funktionale Architektur mit hoher Wohnqualität verbinden. Jede Einheit bietet rund 100 m² Wohnfläche, großzügige Gärten sowie helle, offene Grundrisse für ein angenehmes, familienfreundliches Wohngefühl. Durch die versetzte Bauweise, effiziente Ziegelmassivkonstruktion und hochwertige Ausstattung entsteht ein nachhaltiges, privates und zugleich harmonisches Wohnensemble. Rechtlicher Hinweis: Der Makler ist einseitig nur für den Vermieter tätig. Im Falle der späteren Ausübung der Kaufoption fällt eine Vermittlungsprovision in Höhe von 3% des Gesamtkaufpreises zzgl. 20% USt. an. Infina, Österreichs beliebtester Wohnbau-Finanz-Experte, begleitet Sie ganzheitlich rund um Ihr Immobilienvorhaben. Die Entscheidung, ob man eine Immobilie mieten oder kaufen möchte, sollte gut überlegt sein. Unser Mieten-oder-Kauf-Vergleichsrechner bietet Ihnen eine optimale finanzielle Entscheidungsgrundlage. Der Vergleich lohnt sich. [URL="https://www.infina.at/kreditrechner/mietenkaufen-rechner/"]Jetzt bei Infina[/URL] Was kann Infina noch für Sie tun? Wenn Sie eine Finanzierung für Ihre Traumimmobilie wünschen, begleiten wir Sie gerne von der strategischen Planung bis zur Realisierung und darüber hinaus. Wir sind Österreichs beliebtester Wohnbau-Finanz-Experte und unsere Mission lautet: Jeder Kunde hat das Recht auf den besten Kredit.
  • Infina kooperiert mit über 150 Banken in Österreich und Deutschland
  • Über 600 Kreditprodukte im Vergleich
  • Über 100-mal vor Ort in ganz Österreich
Ebenso unterstützen wir unsere Kunden beim Verkauf und der Vermietung Ihrer Immobilien sowie bei der Immobiliensuche durch unsere Immobilienexperten.
Wir weisen Sie darauf hin, dass die gemachten Angaben und Informationen lediglich unverbindliche Vorabinformationen sind und daher ohne Gewähr erfolgen.

Merkmale

  • 252,9 m² Grundstück
  • offene Küche
  • 2 Stellplätze: 2 Außen-Stellplätze
  • Gäste-WC
  • Garten
  • Terrasse
  • Badezimmer: Bad mit Dusche, Bad mit Fenster

Grundrisse

Grundrisse
1 / 2

Bausubstanz und Energie

Möchtest du Details zum Energieverbrauch?info_energy_calculation-icon
  • Zustand der ImmobilieNeubau, Massivhaus, Erstbezug
  • HeizungsartFußbodenheizung
  • EnergieträgerLuft-/Wasser-Wärmepumpe
Immowelt logo

Mietkosten

Miete auf Anfrage
Kaution
keine Angabe
Weitere Preisinformationen
2 Stellplätze

Lage

address-icon
Altenburg (3591)
Die charmante Gemeinde Altenburg, liegt idyllisch mitten im wunderschönen Waldviertel und in unmittelbarer Nähe zur Bezirkshauptstadt Horn. Die Lage ist ideal für Familien, da sowohl Kindergarten als auch Volksschule in wenigen Minuten fußläufig erreichbar sind. Auch die Anbindung an das öffentliche Verkehrsnetz durch die Bushaltestelle ist fußläufig gegeben. Die nur etwa 5 km entfernte Bezirkshauptstadt Horn deckt alle Annehmlichkeiten des täglichen Bedarfs ab, inklusive Einkaufsmöglichkeiten, Arztpraxen, Apotheken und dem Landesklinikum. Kulturell ist Altenburg durch das im Jahr 1144 gegründete Benediktinerstift sowie den Garten der Religionen bekannt, welche zu den meistbesuchten Sehenswürdigkeiten der Region gehören. Die idyllische Lage im Grünen und die Nähe zum Kamptal garantieren zudem viel Abwechslung und beste Lebensqualität.

Weitere Informationen

Stichworte Stellplatz vorhanden, Süd-Balkon/Terrasse, Rolladen, Anzahl der Badezimmer: 1, Anzahl der separaten WCs: 2, Anzahl Terrassen: 1, Balkon-Terrassen-Fläche: 10,22 m², Gartenfläche: 123,19 m², Bundesland: Niederösterreich, 2 Etagen

Weitere Services

Lust auf eine Besichtigung?
Eine Frage zur Immobilie?
Mit einer persönlichen Nachricht hast du bessere Chancen auf eine Antwort.
Mit der Nutzung der oben angegebenen Telefonnummer oder durch Klicken auf „Kontaktieren“ akzeptierst Du die Allgemeinen Nutzungsbedingungen, denen Du jederzeit widersprechen kannst. Weitere Informationen zum Datenschutz

Über den Anbieter

Brixner Straße 2/4, 6020 INNSBRUCK
partner badge
Partnerschaft
Herr Montana ChambasDein Kontakt
Online-ID: 2678BNPN2RTY
Referenznummer: 51821
Wie zufrieden bist du mit dieser Seite (nicht mit der Immobilie selbst)?