
HB-HB-Immobilien
Herr Charles Hyde-Blake
004 ···
Nr. anzeigenPreise & Kosten
Provision für Käufer
3,57% (inkl. 19% MwSt) vom beurkundeten Kaufpreis, jeweils vom Käufer und Verkäufer
Lage
Die Immobilie liegt in einem der gefragtesten Stadtteile Bremens - im Stadtteil Horn.
In einer Seitenstraße einer Sackgasse genießen Sie ein angenehmes Wohnumfeld. Eine angrenzende Spiel- und Gehwegfläche sorgt für ein sicheres Umfeld für Kinder und macht die Nachbarschaft besonders familienfreundlich.
Die...
Das Haus
Kategorie
Reihenmittelhaus
Baujahr
1976
Bezug
ab sofort
Energie & Heizung
Warum sehe ich diese Anzeige? – Du siehst diese Anzeige basierend auf Ihrer Navigation auf unserer Website und den Suchkriterien, die du verwendet hast.
Energieausweistyp
Bedarfsausweis
Gebäudetyp
Wohngebäude
Baujahr laut Energieausweis
2002
Wesentliche Energieträger
GAS
Gültigkeit
01.09.2024 bis 31.08.2034
Effizienzklasse
E
Endenergiebedarf
156,00 kWh/(m²·a)
Weitere Energiedaten
Haustyp
Massivhaus
Energieträger
Gas
Heizungsart
Zentralheizung
Details
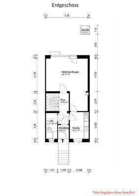
Objektbeschreibung
Herzlich willkommen in Ihrem neuen Zuhause!
Zum Verkauf steht ein charmantes Reihenmittelhaus, das im Jahr 1976 in solider Massivbauweise errichtet wurde. Mit vier Etagen bietet diese Immobilie großzügigen Wohnraum und eignet sich perfekt für Familien oder Paare, die viel Platz und Komfort schätzen. Sechs Zimmer, drei...
Ausstattung
Hier sind einige ausgewählte Ausstattungsmerkmale der Immobilie:
- Insgesamt vier Etagen
- Sechs großzügige Zimmer
- Drei Bäder (jeweils im Erd-, Ober- und Dachgeschoss)
- Gasheizung, installiert im Jahr 2002
- Garten mit zwei Terrassen sowie einem Gartenhaus
- Elektrische Markise für...
Preisinformation
1 Stellplatz
Weitere Informationen
Sonstiges
Die aktuelle Grundsteuer beträgt aktuell ca. € 596,44 p.a.
Unsere Objektangaben basieren auf den uns erteilten Informationen. Eine Haftung für die Richtigkeit und Vollständigkeit können wir deshalb nicht übernehmen.
Stichworte
Süd-West-Balkon/Terrasse, Anzahl der Schlafzimmer: 5, Anzahl der...
Anbieter der Immobilie
HB-HB-Immobilien
Schwachhauser Heerstr. 54A, 28209 Bremen
Online-ID: 2nnpc5a
Referenznummer: CHB-26-01-0000407
Finde Angebote wie dieses
Hier geht es zu unserem Impressum, den Allgemeinen Geschäftsbedingungen, den Hinweisen zum Datenschutz und nutzungsbasierter Online-Werbung.