
Kielpinski & Co. Immobilien
040 ···
Nr. anzeigenPreise & Kosten
Provision für Käufer
3,57% (inkl. MwSt.) vom KP vom Käufer zu zahlen
Lage
Seester ist eine kleine Landgemeinde mit rund 1.000 Einwohnern und liegt idyllisch inmitten der Elbmarsch, direkt an der Krückau. Sie träumen von weitläufigen Feldern, Wiesen und natürlicher Ruhe? Dann finden Sie in Seester einen perfekten Ort zum Entschleunigen. Hier wachsen Ihre Kinder in sicherer, naturnaher Umgebung auf...
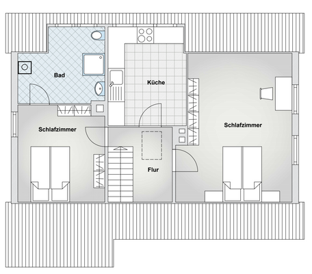
Das Haus
Kategorie
Einfamilienhaus
Derzeitige Nutzung
frei
Energie & Heizung
Warum sehe ich diese Anzeige? – Du siehst diese Anzeige basierend auf Ihrer Navigation auf unserer Website und den Suchkriterien, die du verwendet hast.
Energieausweistyp
Bedarfsausweis
Gebäudetyp
Wohngebäude
Baujahr laut Energieausweis
1956
Gültigkeit
bis 07.10.2035
Effizienzklasse
H
Endenergiebedarf
258,30 kWh/(m²·a)
Details
Objektbeschreibung
Viel Platz für die ganze Familie: Auf insgesamt 6 bis 7 Zimmern, 2 Küchen und 2 Bädern finden Sie hier eine sehr gepflegte und gemütliche Immobilie vor. Zusätzlichen Stauraum bietet der Teilkeller sowie eine in 3 Räume unterteilte Schuppenanlage im Garten. Ein Doppelcarport mit kleiner Werkstatt befindet sich an der Straße...
Ausstattung
In der Verlängerung des Eingangsflures betreten Sie die Küche. Dieser Raum ist ein Verbindungszimmer zu dem weiteren Wohnzimmer im Erdgeschoss. Mit einem einfachem Ceranfeld und kleiner Geschirrspülmaschine wird diese Küche als Kaffee- und Teeküche genutzt.
Das Schlafzimmer wurde 1967 und 9 Jahre später dann das Wohnzimmer...
Weitere Informationen
Maklerprovision
Maklerprovision: Beim Kauf fällt eine vom Käufer zu zahlende Maklerprovision in Höhe von 3,57% (inkl. gesetzlicher MwSt.) des Kaufpreises an. Die Käufer-Provision ist beim Abschluss des Notarvertrages verdient und fällig. Die Maklerfirma hat einen provisionspflichtigen Vertrag mit dem Verkäufer in gleicher...
Anbieter der Immobilie
Online-ID: 2nnup5b
Referenznummer: A2231
Finde Angebote wie dieses
Hier geht es zu unserem Impressum, den Allgemeinen Geschäftsbedingungen, den Hinweisen zum Datenschutz und nutzungsbasierter Online-Werbung.