

Bürofläche zur Miete • provisionsfrei12 €/m²155 m² Bürofläche • teilbar ab 155 m²
12 €
/m²
155 m² Bürofläche • teilbar ab 155 m²
Repräsentative Bürofläche in Nürnberg-Mögeldorf - JLL
Merkmale
- frei ab 01.10.2026
- Teeküche
- Personenaufzug
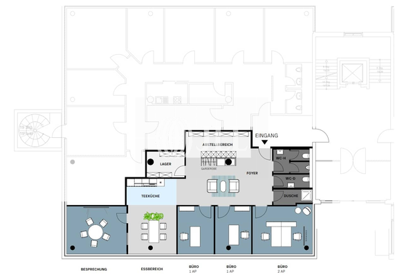
Grundrisse
Grundrisse
1 / 2
Realisiere Dein Projekt
Bausubstanz und Energie
Der Anbieter hat keine Informationen zum Energieverbrauch bereit gestellt.
- Baujahr2006
Mietkosten
Monatliche Miete
12 €/m²
Nebenkosten
3,20 €
Provision für Mieter
provisionsfrei; provisionsfrei für den Mieter/Käufer
Kaution
keine Angabe
Lage

Mögeldorf, Nürnberg (90482)
Der Anbieter hat die genaue Adresse nicht freigegeben
Weitere Informationen
Weitere Services
Lust auf eine Besichtigung?
Eine Frage zur Immobilie?
Über den Anbieter
Sophie-Germain-Straße 12, 90443 Nürnberg
Partnerschaft

Frau Julia SchreiterDein Kontakt
Online-ID: 2np2n52
Referenznummer: 4@of167672@14@0


Jones Lang LaSalle SE - Office Leasing Nürnberg
Wie zufrieden bist du mit dieser Seite (nicht mit der Immobilie selbst)?

