
Dr. André Schaloske Immobilien
030 ···
Nr. anzeigenPreise & Kosten
Provision für Käufer
3,57% inkl. MwSt.
Lage
Storkow ist eine Kleinstadt im Landkreis Oder-Spree, die sich durch ihre reizvolle Lage inmitten einer ausgedehnten Seenlandschaft auszeichnet. Die historische Altstadt gehört zu den ältesten Städten Brandenburgs. Die Burg Storkow, das Wahrzeichen der Stadt ist über 800 Jahre alt. Tourismus, Gastgewerbe, Handwerk und...
Das Haus
Kategorie
Einfamilienhaus
Details
Objektbeschreibung
Hier läßt es sich das ganze Jahr über wie im Urlaub wohnen ! Das charmante Gebäude wurde 1998 in Blockbauweise im schwedischen Stil errichtet und überzeugt durch seine warme, gemütliche Ausstrahlung. Die markanten Spitzgauben, das steile Satteldach, die farbenfrohe Gestaltung der Holzfassade mit den bunten Fensterläden...
Ausstattung
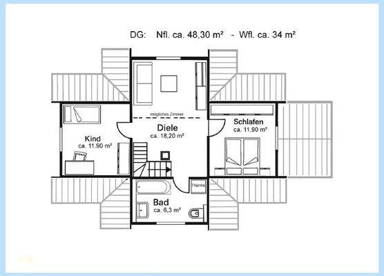
Im Erdgeschoß befinden sich das geräumige Wohnzimmer mit Kamin, der integrierte Essbereich mit einer kleinen Küche, das vom Flur direkt erreichbare Arbeitszimmer sowie das Duschbad mit Sauna. Das Dachgeschoß mit seinen großen Giebeln vermittelt ein besonderes Flair ! Es ist als offene Galerie gestaltet und bis in den...
Weitere Informationen
Stichworte
Nutzfläche: 113,00 m²
Anbieter der Immobilie
Online-ID: 2npbm52
Referenznummer: 3066
Finde Angebote wie dieses
Hier geht es zu unserem Impressum, den Allgemeinen Geschäftsbedingungen, den Hinweisen zum Datenschutz und nutzungsbasierter Online-Werbung.