
H!MM Hammer Immobilien GmbH
Frau Tanja Hammer
004 ···
Nr. anzeigenPreise & Kosten
Provision für Käufer
3,57% inkl. MwSt.
Abschreibung/Anlage
Denkmalschutz-Afa
Lage
Bad Ems ist eine charmante Kur- und Kreisstadt, die das einstige Kaiserbad-Flair bewahrt hat und gleichzeitig alles bietet, was man von einer Stadt mit hoher Lebensqualität erwartet. Die Sehenswürdigkeiten erstrecken sich entlang der malerischen Lahn wie Perlen an einer Kette.
Mit knapp 10.000 Einwohnern verfügt die...
Das Haus
Baujahr
1979
Bezug
nach Vereinbarung
Derzeitige Nutzung
vermietet
Energie & Heizung
Warum sehe ich diese Anzeige? – Du siehst diese Anzeige basierend auf Ihrer Navigation auf unserer Website und den Suchkriterien, die du verwendet hast.
Energieausweis: für diesen Gebäudetyp nicht notwendig
Weitere Energiedaten
Energieträger
Gas
Details
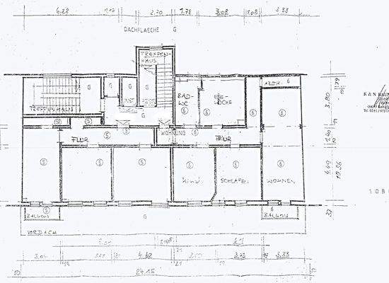
Objektbeschreibung
Willkommen in einer der begehrtesten Lagen von Bad Ems - ein charmantes und zugleich solides Wohn- und Geschäftshaus, das durch seine zentrale Position in der Hauptgeschäftszone besticht. Mit traumhaftem Blick auf die Lahn vereint dieses Anwesen urbanes Leben mit historischem Charme und bietet eine exklusive Gelegenheit für...
Ausstattung
+ Wohn- und Geschäftshaus in zentrale Lage in der Hauptgeschäftszone von Bad Ems, mit traumhaftem Blick auf die Lahn!
+ Erbaut 1977/1979 in massiver Bauweise
+ Renovierungen/Modernisierungen: 2016 und 2023
+ Grundstück: ca. 583 m²
+ Nutzungsübersicht
- Insgesamt 10 Einheiten: 4 Gewerbeeinheiten und 6...
Preisinformation
Ist-Mieteinnahmen pro Jahr: 116.760,00 EUR
Weitere Informationen
Sonstiges
Sämtliche Bilder in diesem Exposé sind urheberrechtlich geschützt und dürfen nicht durch Dritte verwendet bzw. weitergegeben werden. Dieses Exposé wurde mit Sorgfalt zusammengestellt. Alle darin enthaltenen Angaben über das Objekt beruhen auf Informationen vom Eigentümer. Eine Haftung für deren Richtigkeit und...
Anbieter der Immobilie
H!MM Hammer Immobilien GmbH
Dryanderstasse 22, 56130 Bad Ems
Online-ID: 2npha53
Referenznummer: H-01-491
Finde Angebote wie dieses
Hier geht es zu unserem Impressum, den Allgemeinen Geschäftsbedingungen, den Hinweisen zum Datenschutz und nutzungsbasierter Online-Werbung.