
Deutsche Bank Immobilien GmbH
Herr Lauri Brückner
017 ···
Nr. anzeigenPreise & Kosten
Provision für Käufer
3,57 % inkl. MwSt.
Lage
Diese Wohnlage in Düsseldorf Gerresheim besticht durch ihre hervorragende Infrastruktur und die Nähe zu zahlreichen Annehmlichkeiten. Die Gegend ist exzellent an das öffentliche Verkehrsnetz angebunden, mit mehreren Bushaltestellen in der Nähe und der Straßenbahnlinie 709, die eine direkte Verbindung ins Stadtzentrum sowie in...
Das Haus
Kategorie
Doppelhaushälfte
Baujahr
1933
Energie & Heizung
Warum sehe ich diese Anzeige? – Du siehst diese Anzeige basierend auf Ihrer Navigation auf unserer Website und den Suchkriterien, die du verwendet hast.
Energieausweistyp
Verbrauchsausweis
Gebäudetyp
Wohngebäude
Baujahr laut Energieausweis
1933
Wesentliche Energieträger
Gas
Gültigkeit
14.08.2024 bis 14.08.2034
Effizienzklasse
E
Endenergieverbrauch
149,10 kWh/(m²·a)
Weitere Energiedaten
Haustyp
Massivhaus
Energieträger
Gas
Heizungsart
Zentralheizung
Details
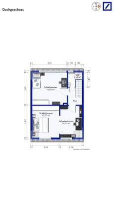
Objektbeschreibung
Diese charmante Doppelhaushälfte im begehrten Stadtteil Düsseldorf-Gerresheim wartet darauf, von Ihnen entdeckt zu werden. Das 1933 erbaute Haus bietet Ihnen 110 m² Wohnfläche auf einem großzügigen Grundstück von knapp 578 m² und ist bereit, Ihr neues Zuhause zu werden. Das Haus wurde 1967 Kernsaniert...
Ausstattung
-Baujahr 1933
-Kernsanierung: 1967
-Wohnfläche: ca. 110m²
-Grundstück: 578m²
-Fenster: 2004
-Dach: 2011
-Bäder: 2005
-Innenausbau: 2011
-Heizung 2007
-Unterkeller: 50%
Weitere Informationen
Sonstiges
Sie interessieren sich für die Immobilie? Bitte stellen Sie eine Anfrage mit ihren vollständigen Kontaktdaten. Gern bieten wir Ihnen auch einen persönlichen Besichtigungstermin an, hierfür benötigen wir nur einen Bonitätsnachweis Ihrer Bank. Sollte Ihnen noch kein Nachweis vorliegen, können wir Sie hierbei gern...
Anbieter der Immobilie
Deutsche Bank Immobilien GmbH
Immermannstraße 65c, 40210 Düsseldorf
Online-ID: 2npls53
Referenznummer: 42460101-067966
Finde Angebote wie dieses
Hier geht es zu unserem Impressum, den Allgemeinen Geschäftsbedingungen, den Hinweisen zum Datenschutz und nutzungsbasierter Online-Werbung.